Instapklare, gerenoveerde gezinswoning met 4 slaapkamers vlakbij Krugerpark

Nieuw
€ 379.000
Leningstraat 34, 2140 BORGERHOUT
Ref. 15522
4
1
155 m2
2 m2

Op zoek naar een ruime, instapklare woning in een rustige, kindvriendelijke buurt? Deze charmante woning in Borgerhout combineert hedendaags comfort met een praktische indeling, op wandelafstand van het groene Krugerpark en met alle voorzieningen binnen handbereik. Ideaal voor gezinnen die ruimte, licht en een goede ligging zoeken!

Ruimtelijk & lichtrijk

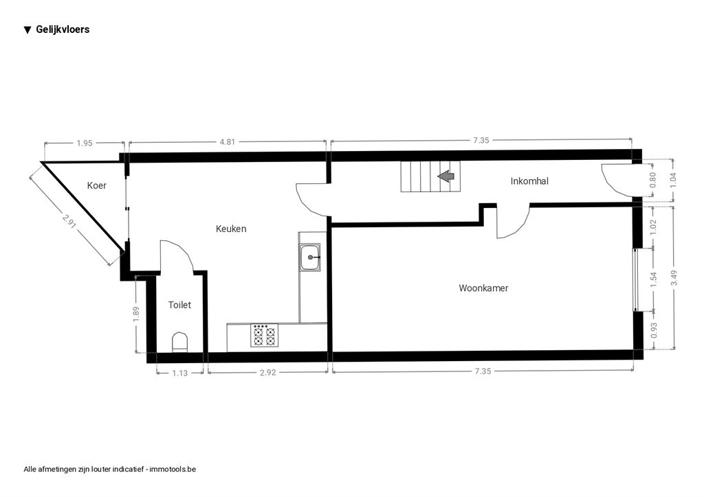
Via de inkomhal, afgewerkt met een onderhoudsvriendelijke tegelvloer en voorzien van natuurlijk licht, kom je binnen in de woning. Van hieruit heb je toegang tot de ruime leefruimte van ca. 28 m², waar salon en eetplaats mooi in elkaar overvloeien. De grote raampartijen zorgen hier voor een aangename lichtinval en een gezellige sfeer.

Achteraan bevindt zich de volledig vernieuwde keuken, uitgevoerd in een tijdloos design met witte greeploze kasten en een donker werkblad. Je beschikt hier over kwalitatieve toestellen, waaronder een 5-pits gasfornuis, oven, vaatwasser en Smeg koelkast en diepvries. De elektrische lichtkoepel zorgt voor extra daglicht, wat deze ruimte bijzonder aangenaam maakt om te koken en te leven.

Aansluitend vind je het aparte gastentoilet en de compacte, zuidgerichte koer – ideaal voor een koffietje in de zon.

Comfort & ruimte

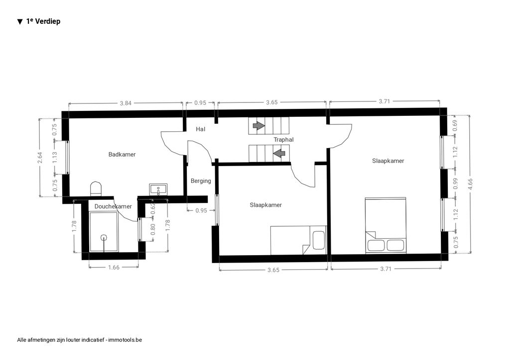
Op de eerste verdieping geeft de nachthal toegang tot twee volwaardige slaapkamers en een uitzonderlijk ruime badkamer. Deze is uitgerust met een grote inloopdouche, een tweede toilet, een lavabomeubel en aansluitingen voor was- en droogmachine, netjes verwerkt in maatkasten.

De tweede verdieping herbergt nog eens twee slaapkamers, waarvan één met toegang tot de zolderruimte. De kamers zijn afgewerkt met een laminaatvloer en bieden tal van mogelijkheden: kinderkamers, bureau of hobbyruimte.

Extra bergruimte vind je zowel op zolder als in de kelder, ideaal voor stockage. De indeling van de woning is overzichtelijk en praktisch, zoals ook duidelijk blijkt uit het grondplan.

Rustig wonen vlakbij groen en stad

De woning is gelegen in een rustige straat in Borgerhout, vlakbij het Krugerpark, waar je heerlijk kunt wandelen, sporten of ontspannen. In de buurt vind je tal van winkels, scholen en openbaar vervoer. Dankzij de vlotte verbinding naar de Ring ben je bovendien snel in en uit de stad.

Wenst u meer informatie of een bezoek?

Stuur ons een bericht en u mag binnen de 24u een reactie van ons verwachten.

Troeven

  • volledig gerenoveerd (2022)
  • 4 slaapkamers
  • ruime badkamer
  • 2 toiletten
  • pvc-ramen met dubbel glas en rolluik
  • gunstig EPC
  • elektriciteit conform
  • asbestvrij
  • kelder en zolder aanwezig
  • rustige, kindvriendelijke buurt
  • vlakbij Krugerpark

Gebouw

Staat
Gerenoveerd
Aantal verdiepingen
2
Bebouwing
Gesloten
Renovatiejaar
2022
Beschikbaarheid
Bij akte

Comfort

Keuken
Alle comfort
Kelder
Ja

Terrein

Bewoonbare oppervlakte
155 m2
Grondoppervlakte
70 m2
Living
28 m2
Tuin
2,5 m2
Breedte grond
5 m
Diepte
13 m
Gevelbreedte
5 m

* afmetingen bij benadering

Energie

EPC UC
20251112-0003725890-RES-1
EPC
237 kWh/m2
  • f
  • e
  • d
  • c
  • b
  • a
  • a+
Elektrische keuring
Ja, conform AREI
Verwarming
Individueel - CV op gas
Beglazing
Dubbel
Dak
Zadeldak

Stedenbouwkundige informatie

Stedenbouwkundige bestemming
Woongebied
Bouwvergunning
Niet van toepassing
Verkavelingsvergunning
Niet van toepassing
Voorkooprecht
Nee
Dagvaarding en herstelvordering
Geen rechterlijke herstelmaatregel of bestuurlijke maatregel opgelegd
Stedenbouwkundig uittreksel uitgegeven
Op 28/10/2025, door de gemeente Antwerpen, met referentie VIP-00643040
Overstromingsgevoelig gebied
Nee
G-score
Klasse D
P-score
Klasse D
Bodemattest
Aanwezig

Financieel

Prijs
€ 379.000
Kadastraal inkomen
€ 480
Huidige gemeensch. kosten p/m
€ 0

Registratiekosten en kostprijs berekenen voor

  • 12%
  • 2%
Registratierechten*
€ 45.480
Honorarium notaris
€ 2.523
Honorarium notaris (incl. BTW)
€ 3.052
Totale kosten
€ 48.532
Totale kostprijs
€ 427.532
Registratierechten*
€ 7.580
Honorarium notaris
€ 2.523
Honorarium notaris (incl. BTW)
€ 3.052
Totale kosten
€ 10.632
Totale kostprijs
€ 389.632

Simulatie leningkost

Gemiddelde maandelijkse afbetaling
Projectprijs
379.000
Eigen geld
25.000
Rente
2%
Looptijd
20 jaar

*Uitleg financiële voorstelling:

Dit is een richtinggevende schatting van de bijkomende kosten van je aankoop. Deze is afhankelijk van variabele factoren, waaronder volgende voorbeelden;

  • Zal de aankoop al dan niet jouw hoofdverblijfplaats worden?
  • Koop je aan als een natuurlijk persoon of als vennootschap?

Voor een uitgebreide berekening van de registratie-rechten en erelonen, kijk op berekeningsmodule - notaris.be. Andere kosten bij je notaris staan ook uitgelegd op notaris.be

*Registratierechten; 

  • De standaard registratierechten bij aankoop van een woning bedragen 12% van de aankoopprijs.
  • Registratirechten bij aankoop van de enige eigen woning bedragen 2% van de aankoopprijs. 

Er bestaat een bijkomende vermindering, bij aankoop van een woning onder € 220.000,00 of onder € 240.000,00 als deze in een centrumstad of de Vlaamse Rand gelegen is.

Dit alles onder voorbehoud van de voorwaarden die je kan terugvinden op vlaanderen.be

* Alle afmetingen op onze website zijn indicatief. 

Indeling

Gelijkvloers
Inkomhal
10,0 m2
Leefruimte
28,0 m2
Keuken
20,0 m2
Koer
2,5 m2
Toilet 1
2,5 m2
Tussenverdiep 1
Overloop
6,0 m2
Badkamer 1
13,0 m2
Technische ruimte/berging
1,5 m2
Eerste verdieping
Slaapkamer 1
11,0 m2
Slaapkamer 2
19,0 m2
Tweede verdieping
Slaapkamer 3
19,0 m2
Slaapkamer 4
11,0 m2
Zolder
Zolder
10,0 m2
Kelder(-1)
Kelder

* afmetingen bij benadering

Wenst u meer informatie of een bezoek?

Stuur ons een bericht en u mag binnen de 24u een reactie van ons verwachten.

Vergelijkbare panden

BORGERHOUT
265 m2
5
87 m2
F
Optie
BORGERHOUT
144 m2
4
32 m2
C
Optie

Eengezinswoning

€ 499.000
BORGERHOUT
234 m2
3
125 m2
C

Uw favorieten

Hou me op de hoogte