Ruim, perfect afgewerkt nieuwbouwappartement met grote tuin, op wandelafstand van het Rivierenhof - mogelijkheid aankoop onder 6% btw.

Nieuw
€ 515.000
Ergo-de Waellaan 120, 2100 DEURNE
Ref. 15488
3
2
151 m2
85 m2

Dit splinternieuwe gelijkvloers appartement heeft alles wat je zoekt, maar bijna nooit vindt in de stad. Denk: een bewoonbare oppervlakte van liefst 150 m², drie slaapkamers, hoge plafonds, veel licht en een royale tuin en de perfecte ligging op wandelafstand van het Rivierenhof. Nóg troeven: mogelijkheid om aan te kopen onder 6% btw,- (mits voldaan aan voorwaarden)

In dit nieuwbouwappartement is alles hoogwaardig afgewerkt, tot het kleinste hoekje. Die valt meteen op als je – langs de grote voortuin - de inkomhal binnenkomt. De houten parketvloer loopt door over het hele appartement.

De open keuken is uitgerust met toestellen van Whirlpool (een garantie op topkwaliteit), een inductieplaat en een stijlvol werkblad. Aansluitend vind je de woonkamer: een indrukwekkende, lichtrijke ruimte met grote ramen, hoge plafonds en moderne accenten (zoals de zwarte spots) en gezellige parketvloer. Het grote schuifraam geeft uit op de tuin, zodat binnen en buiten bij mooi weer naadloos in elkaar overlopen.

De achtertuin van 85m² is aangelegd met grijze tegels. Handig en onderhoudsvriendelijk.  Ruimte in overvloed om buiten te eten, te spelen of te tuinieren.

Drie slaapkamers en luxueuze badkamer

Via de nachthal kom je in de drie slaapkamers. Die hebben allemaal dezelfde parketvloer, ALU-ramen met hoog rendementsglas en ingebouwde verluchting.

De badkamer is luxueus afgewerkt met een inloopdouche met regenkraan en keramische tegels, dubbele lavabo, grote spiegel en terrazzotegels in steenlook. Daarnaast heeft het appartement nog een aparte berging en een tweede toilet.

Modern en energiezuinig

Dit nieuwbouwappartement is reeds volledig afgewerkt en dus onmiddellijk beschikbaar! Het voldoet aan alle hedendaagse normen. Met onder andere 7 zonnepanelen (3080 Wp) op het dak en overal hoog rendementsglas woon je hier energiezuinig en toekomstgericht.

Rivierenhof om de hoek

Je woont hier ideaal, overal dichtbij en toch heerlijk rustig en groen. Het prachtige Rivierenhof, het grootste park van de stad, ligt op amper een paar minuten wandelen. Binnen een straal van nog geen 500 meter zijn liefst vier supermarkten. Ook heel wat buurtwinkels zijn vlakbij. Met de fiets, de bus of de tram sta je snel in de stad, met de auto sta je zo op de autostrade. Door de vernieuwing van de Wouter Haecklaan bevindt je je in het groen.

Ondergrondse autostaanplaats aan te kopen voor €28.200

Wenst u meer informatie of een bezoek?

Stuur ons een bericht en u mag binnen de 24u een reactie van ons verwachten.

Troeven

  • Nieuwbouw aan 6% btw - mits voldaan aan de voorwaarden
  • 150 m² bewoonbare oppervlakte
  • (uitzonderlijk voor nieuwbouw, ruime kamers)
  • 3 slaapkamers
  • Grote tuin
  • Bijzonder hoogwaardige afwerking
  • 7 zonnepanelen (3080 Wp)
  • Energiezuinig volgens nieuwste normen

Gebouw

Staat
Nieuwbouw
Aantal verdiepingen
4
Bebouwing
Halfopen
Bouwjaar
2025
Beschikbaarheid
Bij akte

Comfort

Keuken
Geïnstalleerd
Aansluiting gas
Ja
Lift
Ja

Terrein

Bewoonbare oppervlakte
151 m2
Grondoppervlakte
728 m2
Living
42 m2
Tuin
55 m2
Terras
30 m2
Breedte grond
26,5 m
Diepte
28 m
Gevelbreedte
10 m

* afmetingen bij benadering

Energie

EPC
Info aangevraagd
  • f
  • e
  • d
  • c
  • b
  • a
  • a+
Elektrische keuring
Ja, conform AREI
Verwarming
Individueel - CV op gas
Beglazing
Dubbel
Dak
Plat dak

Stedenbouwkundige informatie

Stedenbouwkundige bestemming
Woongebied
Bouwvergunning
Ja
Verkavelingsvergunning
Niet van toepassing
Voorkooprecht
Nee
Dagvaarding en herstelvordering
Geen rechterlijke herstelmaatregel of bestuurlijke maatregel opgelegd
Stedenbouwkundig uittreksel uitgegeven
Op 09/07/2025, door de gemeente Antwerpen, met referentie VIP00554242
Overstromingsgevoelig gebied
Nee
G-score
Klasse A
P-score
Klasse B
Bodemattest
Aanwezig

Financieel

Prijs
€ 515.000
Huidige gemeensch. kosten p/m
€ 120

nog te berekenen bij ingebruikname

Registratiekosten, BTW en kostprijs berekenen

  • 6%
  • 21%
Grondaandeel
€ 107.000
Constructieaandeel
€ 408.000
Registratierechten*
€ 12.840
Honorarium notaris
€ 2.612
Honorarium notaris (incl. BTW)
€ 3.160
BTW Gebouw
€ 24.480
Totale kosten
€ 40.480
Totale kostprijs
€ 555.480
Grondaandeel
€ 107.000
Constructieaandeel
€ 408.000
Registratierechten*
€ 12.840
Honorarium notaris
€ 2.612
Honorarium notaris (incl. BTW)
€ 3.160
BTW Gebouw
Totale kosten
Totale kostprijs

Simulatie leningkost

Gemiddelde maandelijkse afbetaling
Projectprijs
515.000
Eigen geld
25.000
Rente
2%
Looptijd
20 jaar

*Uitleg financiële voorstelling:

Dit is een richtinggevende schatting van de bijkomende kosten van je aankoop. Deze is afhankelijk van variabele factoren, waaronder volgende voorbeelden;

  • Zal de aankoop al dan niet jouw hoofdverblijfplaats worden?
  • Koop je aan als een natuurlijk persoon of als vennootschap?

Voor een uitgebreide berekening van de registratie-rechten en erelonen, kijk op berekeningsmodule - notaris.be. Andere kosten bij je notaris staan ook uitgelegd op notaris.be

*Registratierechten; 

  • De standaard registratierechten bij aankoop van een woning bedragen 12% van de aankoopprijs.
  • Registratirechten bij aankoop van de enige eigen woning bedragen 2% van de aankoopprijs. 

Er bestaat een bijkomende vermindering, bij aankoop van een woning onder € 220.000,00 of onder € 240.000,00 als deze in een centrumstad of de Vlaamse Rand gelegen is.

Dit alles onder voorbehoud van de voorwaarden die je kan terugvinden op vlaanderen.be

* Alle afmetingen op onze website zijn indicatief. 

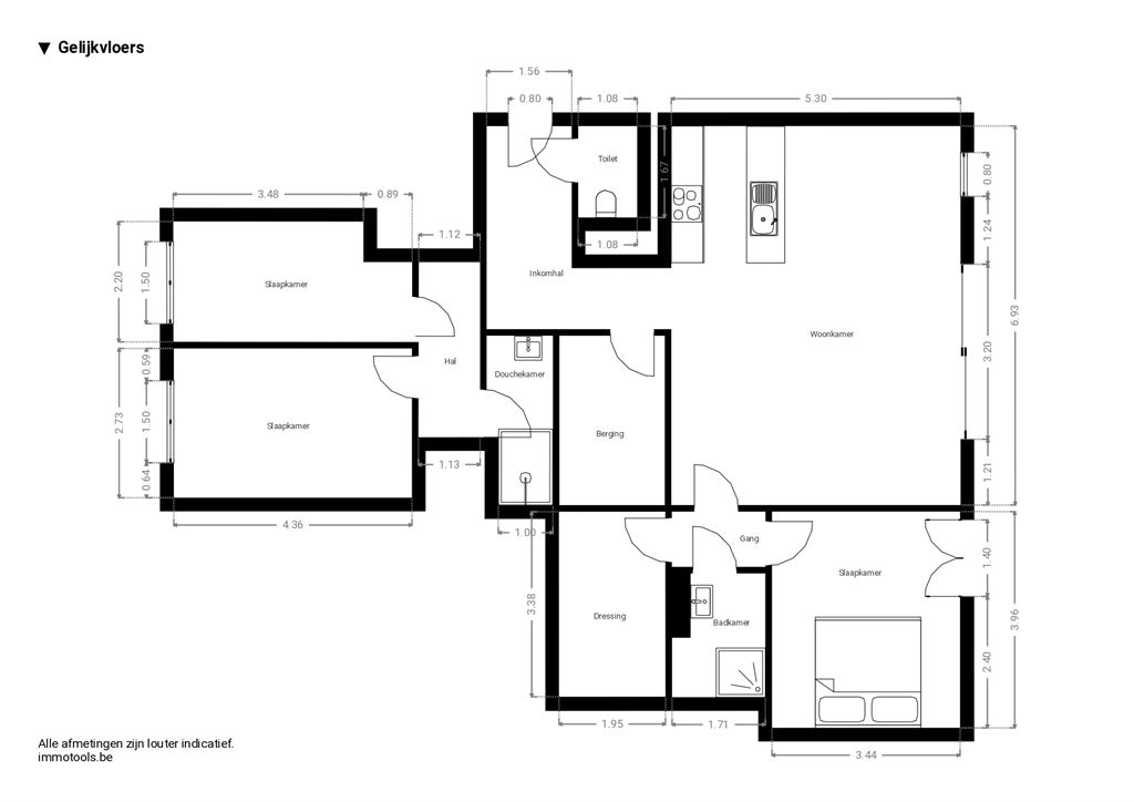
Indeling

Gelijkvloers
Inkomhal
4,5 m2
Toilet
2,0 m2
Leefruimte met open keuken
42,0 m2
Nachthal
12,0 m2
Slaapkamer 1
15,0 m2
Badkamer 1
4,0 m2
Polyvalente ruimte
7,5 m2
wasruimte
5,0 m2
Slaapkamer 2
11,0 m2
Slaapkamer 3
15,0 m2
Badkamer 2
4,0 m2
Tuin
55,0 m2
Terras
30,0 m2

* afmetingen bij benadering

Wenst u meer informatie of een bezoek?

Stuur ons een bericht en u mag binnen de 24u een reactie van ons verwachten.

Vergelijkbare panden

Nieuw
DEURNE
109 m2
2
6 m2
B
In de kijker
DEURNE
143 m2
3
33 m2
A+

Uw favorieten

Hou me op de hoogte