Nieuwbouw: ruime duplex met uitzonderlijk groot terras, op wandelafstand van het Rivierenhof! Mogelijkheid om aan te kopen met 6% btw (mits voorwaarden)

In de kijker
€ 515.000
Ergo-de Waellaan 120, 2100 DEURNE
Ref. 14533
3
1
1
143 m2
33 m2

Deze gloednieuwe duplex met drie slaapkamers combineert enorm veel ruimte en licht met een zeer hoogwaardige afwerking. Vanop je uitgestrekte terras (33 m²) heb je een prachtig panoramisch uitzicht op de stad.

Dit splinternieuwe duplexappartement heeft een bewoonbare oppervlakte van liefst 142 m². De inkomhal zet meteen de toon: ruim en stijlvol. De blikvanger in de inkomhal is de zwarte trap met donkere houten accenten die naar de bovenste verdieping leidt.

Maar we blijven eerst nog even op de derde verdieping van het gebouw. In de woonkamer valt het licht royaal binnen op de gezellige parketvloer. Moderne accenten, zoals de zwarte spots, maken het helemaal af. De keuken en de eetkamer vormen aan de andere kant van de duplex één ruimte. De open keuken is uitgerust met toestellen van Whirlpool (een garantie op topkwaliteit), een inductieplaat en een stijlvol werkblad.

Zowel de keuken/eetkamer als de woonkamer hebben een groot schuifraam dat uitgeeft op het terras. Dat heeft niet alleen een panoramisch uitzicht op Antwerpen, het is ook uitzonderlijk groot. Als je hier een tafel met vier of zelfs zes stoelen zet, dan heb je nog plaats over voor loungezetels, een barbecue, een paar planten en zelfs een klein moestuintje.

Bovenste verdieping

Als je naar boven gaat, zie je door de grote raampartij naast de trap zelfs de kathedraal in de verte. Via de nachthal op de bovenverdieping kom je in de drie slaapkamers. Die hebben allemaal een parketvloer. ALU-ramen met ingebouwde verluchting.

De badkamer is luxueus afgewerkt met een inloopdouche met regenkraan en keramische tegels, dubbele lavabo, grote spiegel en terrazzotegels in steenlook. Daarnaast heeft het appartement nog een aparte berging en een tweede toilet.

Modern en energiezuinig

Dit nieuwbouwappartement is direct beschikbaar en reeds volledig afgewerkt. Het voldoet aan alle hedendaagse normen. Met onder andere 8 zonnepanelen op het dak en voldaan aan alle isolatienormen woon je hier energiezuinig en toekomstgericht.

Rivierenhof om de hoek

Je woont hier ideaal, overal dichtbij en toch heerlijk rustig en groen. Het prachtige Rivierenhof, het grootste park van de stad, ligt op amper een paar minuten wandelen. Binnen een straal van nog geen 500 meter zijn liefst vier supermarkten. Ook heel wat buurtwinkels zijn vlakbij. Met de fiets, de bus of de tram sta je snel in de stad, met de auto sta je zo op de autostrade.

De herontwikkeling van de Wouter Haecklaan betreft een grote meerwaarde aan de buurt.

Ondergrondse autostaanplaats aan te kopen voor €28.200.

Maatregelenregister: in aanvraag

Wenst u meer informatie of een bezoek?

Stuur ons een bericht en u mag binnen de 24u een reactie van ons verwachten.

Troeven

  • Nieuwbouw aan 6% btw
  • mits voldaan aan de voorwaarden
  • 142 m² bewoonbare oppervlakte
  • 3 slaapkamers
  • Uitzonder groot terras
  • Bijzonder hoogwaardige afwerking
  • 8 zonnepanelen
  • Fietsenberging met laadpunten

Gebouw

Staat
Nieuwbouw
Aantal verdiepingen
4
Bebouwing
Halfopen
Bouwjaar
2025
Beschikbaarheid
Bij akte

Comfort

Keuken
Geïnstalleerd
Aansluiting gas
Ja
Lift
Ja

Terrein

Bewoonbare oppervlakte
142,5 m2
Grondoppervlakte
728 m2
Living
42 m2
Terras
33 m2
Breedte grond
26,5 m
Diepte
28 m
Gevelbreedte
8 m

* afmetingen bij benadering

Energie

EPC
Info aangevraagd
  • f
  • e
  • d
  • c
  • b
  • a
  • a+
Elektrische keuring
Ja, conform AREI
Verwarming
Individueel - CV op gas
Beglazing
Dubbel
Dak
Plat dak

Stedenbouwkundige informatie

Stedenbouwkundige bestemming
Woongebied
Bouwvergunning
Ja
Verkavelingsvergunning
Niet van toepassing
Voorkooprecht
Nee
Dagvaarding en herstelvordering
Geen rechterlijke herstelmaatregel of bestuurlijke maatregel opgelegd
Stedenbouwkundig uittreksel uitgegeven
Op 09/07/2025, door de gemeente Antwerpen, met referentie VIP00554242
Overstromingsgevoelig gebied
Nee
G-score
Klasse A
P-score
Klasse B
Bodemattest
Aanwezig
Bestuursmaatregelen in het maatregelenregister
Info aangevraagd

Financieel

Prijs
€ 515.000
Huidige gemeensch. kosten p/m
€ 110

schatting, exacte gemeenschappelijke kosten dienen nog te worden berekend.

Registratiekosten, BTW en kostprijs berekenen

  • 6%
  • 21%
Grondaandeel
€ 103.000
Constructieaandeel
€ 412.000
Registratierechten*
€ 12.360
Honorarium notaris
€ 2.600
Honorarium notaris (incl. BTW)
€ 3.146
BTW Gebouw
€ 24.720
Totale kosten
€ 40.226
Totale kostprijs
€ 555.226
Grondaandeel
€ 103.000
Constructieaandeel
€ 412.000
Registratierechten*
€ 12.360
Honorarium notaris
€ 2.600
Honorarium notaris (incl. BTW)
€ 3.146
BTW Gebouw
Totale kosten
Totale kostprijs

Simulatie leningkost

Gemiddelde maandelijkse afbetaling
Projectprijs
515.000
Eigen geld
25.000
Rente
2%
Looptijd
20 jaar

*Uitleg financiële voorstelling:

Dit is een richtinggevende schatting van de bijkomende kosten van je aankoop. Deze is afhankelijk van variabele factoren, waaronder volgende voorbeelden;

  • Zal de aankoop al dan niet jouw hoofdverblijfplaats worden?
  • Koop je aan als een natuurlijk persoon of als vennootschap?

Voor een uitgebreide berekening van de registratie-rechten en erelonen, kijk op berekeningsmodule - notaris.be. Andere kosten bij je notaris staan ook uitgelegd op notaris.be

*Registratierechten; 

  • De standaard registratierechten bij aankoop van een woning bedragen 12% van de aankoopprijs.
  • Registratirechten bij aankoop van de enige eigen woning bedragen 2% van de aankoopprijs. 

Er bestaat een bijkomende vermindering, bij aankoop van een woning onder € 220.000,00 of onder € 240.000,00 als deze in een centrumstad of de Vlaamse Rand gelegen is.

Dit alles onder voorbehoud van de voorwaarden die je kan terugvinden op vlaanderen.be

* Alle afmetingen op onze website zijn indicatief. 

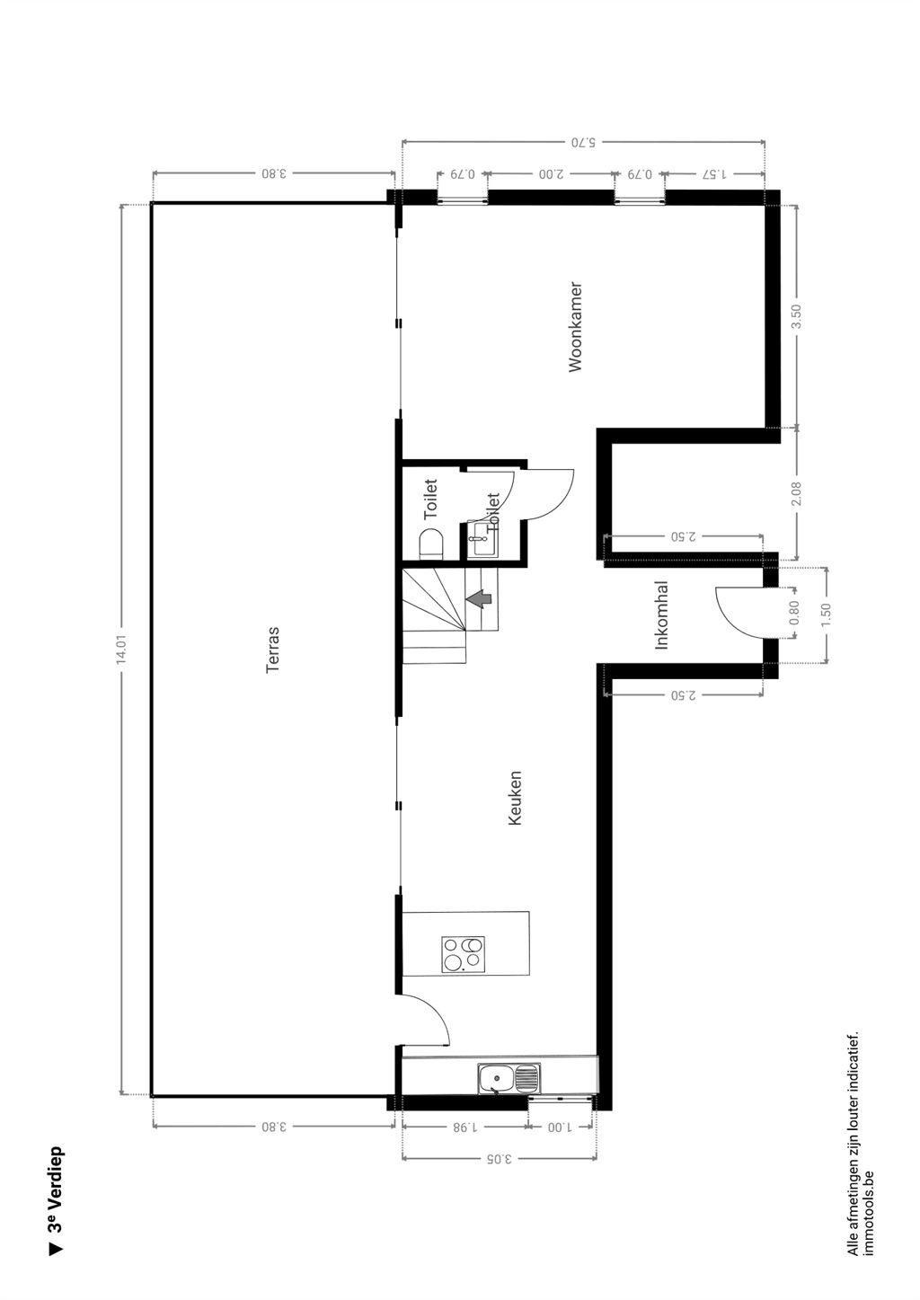
Indeling

Derde verdieping
Inkomhal
12,0 m2
Keuken
12,0 m2
Eetkamer
14,0 m2
Leefruimte met open keuken
28,0 m2
Terras
34,0 m2
Toilet 1
2,5 m2
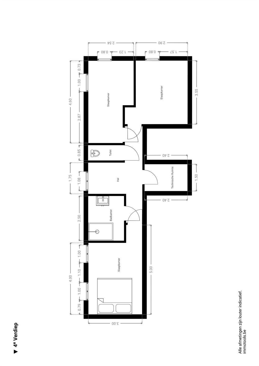
Verdieping 4
Nachthal
11,0 m2
Toilet 2
2,5 m2
Berging
5,0 m2
Slaapkamer 1
15,0 m2
Slaapkamer 2
15,0 m2
Slaapkamer 3
17,5 m2
Badkamer 1
7,0 m2

* afmetingen bij benadering

Wenst u meer informatie of een bezoek?

Stuur ons een bericht en u mag binnen de 24u een reactie van ons verwachten.

Vergelijkbare panden

Nieuw
DEURNE
85 m2
2
12 m2
B
Nieuw
DEURNE
66 m2
2
B
Nieuw
DEURNE
80 m2
2
3 m2
B

Uw favorieten

Hou me op de hoogte