Gerenoveerd appartement met mezzanine vlakbij het Groen Kwartier

Nieuw
€ 159.000
Cobdenstraat 35-3V, 2018 ANTWERPEN
Ref. 15360
1
1
52 m2

Wonen op hoogte, met karakter en licht? Dit knappe appartement combineert een open leefruimte met een gezellige mezzanine, ideaal voor wie houdt van een unieke indeling en een warme, moderne uitstraling. Gelegen op de grens van 2018 Antwerpen en Oud-Berchem, vlakbij Station Berchem

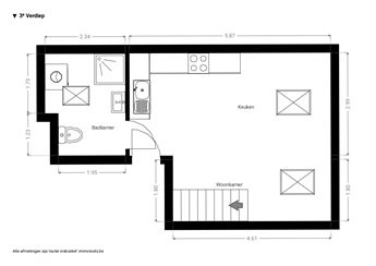
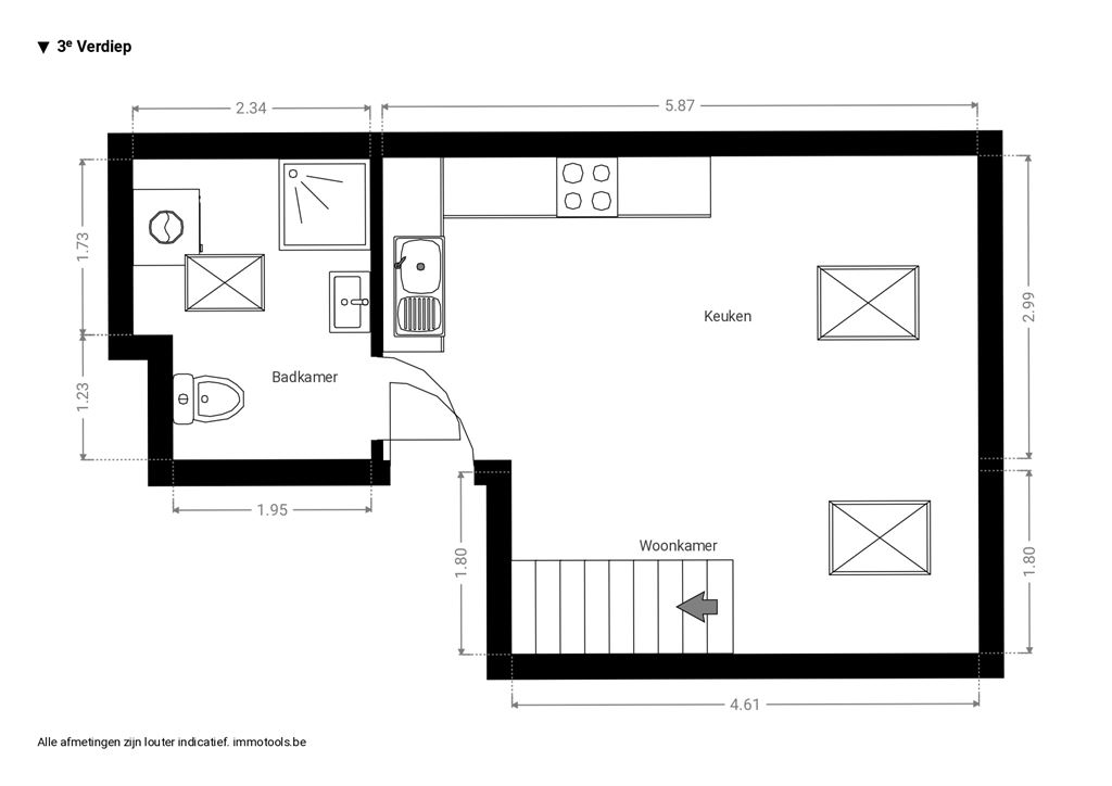
Open keuken met leefruimte en toffe badkamer

Bij het binnenkomen valt meteen de openheid en het ruimtegevoel op. De leefruimte en keuken vloeien naadloos in elkaar over, met een mooie combinatie van een warme parketvloer en onderhoudsvriendelijke tegels in de keuken. Er is voldoende plaats voor zowel een gezellige eethoek als een comfortabele zithoek, en dankzij de grote veluxramen geniet je hier van veel natuurlijk licht.  De keuken is volledig uitgerust met oven, kookplaat, dampkap, vaatwasser en koelkast met diepvries. Dankzij de strakke afwerking en het praktische ontwerp is dit een fijne plek om te koken én te genieten.

Aansluitend bevindt zich de badkamer, afgewerkt met grote grijze XL-tegels en stijlvolle metrotegels tegen de muur. Deze is voorzien van een douchecabine, lavabo met opbergruimte, aansluiting voor wasmachine en droogkast en een hangtoilet. Alles is compact maar doordacht ingericht, met oog voor comfort en extra lichtinval via het veluxraam.

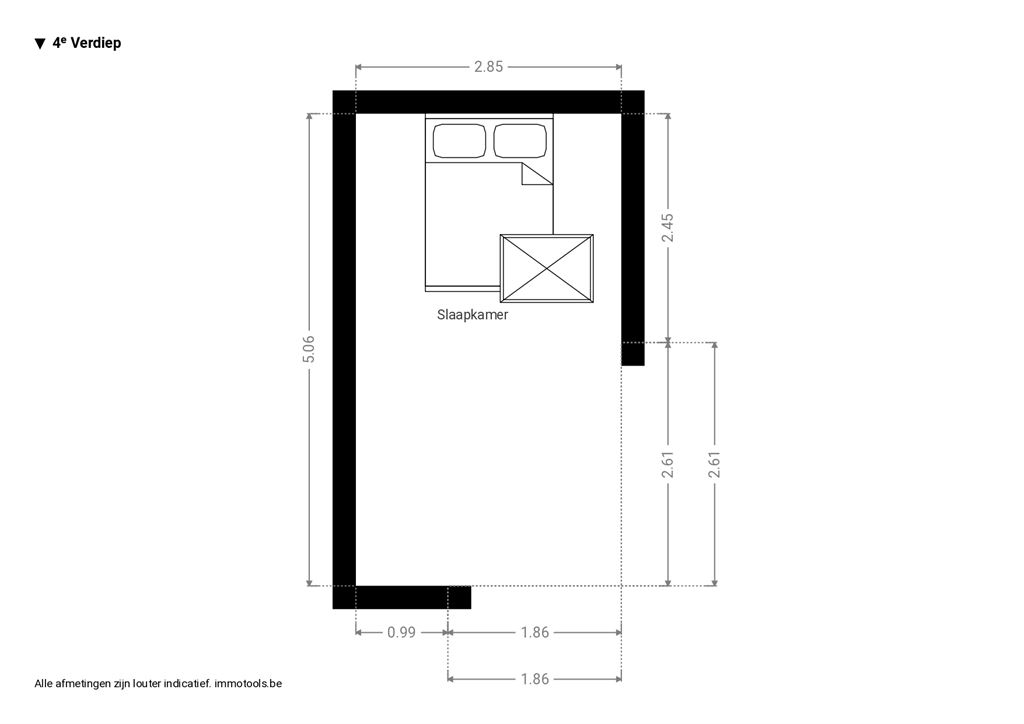
Sfeervol slapen op hoogte met loftgevoel

Via de knappe, geïntegreerde trap bereik je de mezzanine, ingericht als slaapkamer en afgewerkt met een warme parketvloer. Deze verdieping geeft het appartement een speelse, loftachtige uitstraling. De open structuur zorgt voor een aangenaam ruimtegevoel, terwijl de dakramen zorgen voor een overvloed aan natuurlijk licht. Hier kom je helemaal tot rust.

Leven op de grens van Oud-Berchem en Antwerpen

Wonen in Oud-Berchem betekent genieten van een levendige, maar aangename buurt. Je hebt hier alles binnen handbereik: winkels in de Statiestraat, gezellige horeca in het PAKT, scholen, openbaar vervoer en velo-stations. Bovendien ben je dankzij de nabijheid van de Singel en de Ring snel in en uit de stad. Een ideale uitvalsbasis voor wie centraal én comfortabel wil wonen.

Wenst u meer informatie of een bezoek?

Stuur ons een bericht en u mag binnen de 24u een reactie van ons verwachten.

Troeven

  • Hoofddak geïsoleerd
  • aparte nutsvoorzieningen (gas, elektriciteit)
  • asbestveilig
  • dubbele beglazing
  • hoge plafonds
  • EPC B
  • condensatieketel

Gebouw

Staat
Direct bewoonbaar
Aantal verdiepingen
3
Bebouwing
Gesloten
Beschikbaarheid
Bij akte

Comfort

Keuken
Geïnstalleerd
Kelder
Ja

Terrein

Bewoonbare oppervlakte
52 m2
Grondoppervlakte
111 m2
Living
22,5 m2
Gevelbreedte
5,5 m

* afmetingen bij benadering

Energie

EPC UC
20260313-0003823809-RES-1
EPC
154 kWh/m2
  • f
  • e
  • d
  • c
  • b
  • a
  • a+
Elektrische keuring
Ja, niet conform AREI
Verwarming
Individueel - CV op gas
Beglazing
Dubbel
Dak
Zadeldak

Stedenbouwkundige informatie

Stedenbouwkundige bestemming
Woongebied
Bouwvergunning
Ja
Verkavelingsvergunning
Niet van toepassing
Voorkooprecht
Nee
Dagvaarding en herstelvordering
Geen rechterlijke herstelmaatregel of bestuurlijke maatregel opgelegd
Overstromingsgevoelig gebied
Nee
G-score
Klasse A
P-score
Klasse A
Bodemattest
Info aangevraagd

Financieel

Prijs
€ 159.000
Huidige gemeensch. kosten p/m
€ 0

nog geen syndicus/algemene kost

Registratiekosten en kostprijs berekenen voor

  • 12%
  • 2%
Registratierechten*
€ 19.080
Honorarium notaris
€ 0
Honorarium notaris (incl. BTW)
€ 0
Totale kosten
€ 19.080
Totale kostprijs
€ 178.080
Registratierechten*
€ 1.313
Honorarium notaris
€ 0
Honorarium notaris (incl. BTW)
€ 0
Totale kosten
€ 1.313
Totale kostprijs
€ 160.313

Simulatie leningkost

Gemiddelde maandelijkse afbetaling
Projectprijs
159.000
Eigen geld
25.000
Rente
2%
Looptijd
20 jaar

*Uitleg financiële voorstelling:

Dit is een richtinggevende schatting van de bijkomende kosten van je aankoop. Deze is afhankelijk van variabele factoren, waaronder volgende voorbeelden;

  • Zal de aankoop al dan niet jouw hoofdverblijfplaats worden?
  • Koop je aan als een natuurlijk persoon of als vennootschap?

Voor een uitgebreide berekening van de registratie-rechten en erelonen, kijk op berekeningsmodule - notaris.be. Andere kosten bij je notaris staan ook uitgelegd op notaris.be

*Registratierechten; 

  • De standaard registratierechten bij aankoop van een woning bedragen 12% van de aankoopprijs.
  • Registratirechten bij aankoop van de enige eigen woning bedragen 2% van de aankoopprijs. 

Er bestaat een bijkomende vermindering, bij aankoop van een woning onder € 220.000,00 of onder € 240.000,00 als deze in een centrumstad of de Vlaamse Rand gelegen is.

Dit alles onder voorbehoud van de voorwaarden die je kan terugvinden op vlaanderen.be

* Alle afmetingen op onze website zijn indicatief. 

Indeling

Derde verdieping
Open Keuken
6,0 m2
Living
22,5 m2
Badkamer 1
9,0 m2
Slaaphoek
13,5 m2

* afmetingen bij benadering

Wenst u meer informatie of een bezoek?

Stuur ons een bericht en u mag binnen de 24u een reactie van ons verwachten.

Vergelijkbare panden

Nieuw
ANTWERPEN
46 m2
1
2 m2
B
Nieuw
ANTWERPEN
77 m2
1
18 m2
D
Nieuw

Uw favorieten

Hou me op de hoogte