Gelijkvloers appartement met hoge plafonds en stadstuin vlakbij het Groen Kwartier

Nieuw
€ 225.000
Cobdenstraat 35-GLV, 2018 ANTWERPEN
Ref. 15125
1
1
77 m2
18 m2

Veel centraler dan dit wordt het niet: op de grens van Antwerpen en het bruisende Oud-Berchem woon je hier op wandelafstand van station Antwerpen-Berchem, het hippe PAKT en het gezellige Frans Van Hombeeckplein, met ook de Draakplaats en Dageraadplaats vlakbij. Dit gelijkvloers appartement straalt authentieke charme uit, beschikt over een leuke stadskoer en biedt een flexibele indeling die je volledig naar eigen smaak kan afwerken en inrichten.

Authentiek & flexibel ingedeeld

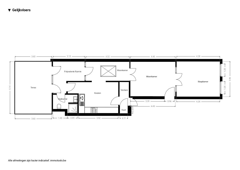
Je komt binnen in de inkomhal op tegelvloer, met plaats voor jassen en schoenen. Van hieruit stap je meteen de keuken binnen, praktisch ingericht met dubbele spoelbak, gasvuur, dampkap en voldoende kastruimte.  Aansluitend vind je de badkamer, die netjes werd vernieuwd met een moderne douchecabine, lavabomeubel, spiegelkast en toilet. Achteraan bevindt zich de veranda, een polyvalente ruimte met zicht op de stadskoer — een aangename plek om te genieten van een koffietje in de zon.

De huidige indeling voorziet rechts van de keuken een zithoek, slaapkamer en bureau. Deze indeling kan je eenvoudig optimaliseren: maak van de bureauruimte aan de straatzijde een volwaardige slaapkamer en richt de huidige slaapkamer in als leefruimte.

Stadstuin & extra ruimte

De gezellige stadstuin op klinkers vormt een leuke buitenplek met ruimte voor planten en een tafeltje. Ideaal om te ontspannen na een drukke dag in de stad. De veranda fungeert als extra tussenruimte en brengt binnen en buiten mooi samen.

Leven op de grens van Oud-Berchem en Antwerpen

Wonen in Oud-Berchem betekent genieten van een levendige, maar aangename buurt. Je hebt hier alles binnen handbereik: winkels in de Statiestraat, gezellige horeca in het PAKT, scholen, openbaar vervoer en velo-stations. Bovendien ben je dankzij de nabijheid van de Singel en de Ring snel in en uit de stad. Een ideale uitvalsbasis voor wie centraal én comfortabel wil wonen.

Wenst u meer informatie of een bezoek?

Stuur ons een bericht en u mag binnen de 24u een reactie van ons verwachten.

Troeven

  • Aparte nutsvoorziening (gas, elektriciteit)
  • hoofddak geïsoleerd
  • condensatieketel
  • dubbele beglazing
  • elektriciteit conform
  • toffe stadstuin

Gebouw

Staat
Direct bewoonbaar
Aantal verdiepingen
3
Bebouwing
Gesloten
Beschikbaarheid
Huurovereenkomst te respecteren

Comfort

Keuken
Geïnstalleerd
Aansluiting gas
Ja
Kelder
Ja

Terrein

Bewoonbare oppervlakte
77 m2
Grondoppervlakte
111 m2
Tuin
18 m2
Gevelbreedte
5,5 m

* afmetingen bij benadering

Energie

EPC UC
20260313-0003823886-RES-1
EPC
337 kWh/m2
  • f
  • e
  • d
  • c
  • b
  • a
  • a+
Elektrische keuring
Ja, conform AREI
Verwarming
Individueel - CV op gas
Beglazing
Dubbel
Dak
Zadeldak

Stedenbouwkundige informatie

Stedenbouwkundige bestemming
Woongebied
Bouwvergunning
Ja
Verkavelingsvergunning
Niet van toepassing
Voorkooprecht
Nee
Dagvaarding en herstelvordering
Geen rechterlijke herstelmaatregel of bestuurlijke maatregel opgelegd
Overstromingsgevoelig gebied
Nee
G-score
Klasse A
P-score
Klasse A
Bodemattest
Info aangevraagd

Financieel

Prijs
€ 225.000
Huidige gemeensch. kosten p/m
€ 0

nog geen syndicus/algemene kosten

Registratiekosten en kostprijs berekenen voor

  • 12%
  • 2%
Registratierechten*
€ 27.000
Honorarium notaris
€ 0
Honorarium notaris (incl. BTW)
€ 0
Totale kosten
€ 27.000
Totale kostprijs
€ 252.000
Registratierechten*
€ 2.633
Honorarium notaris
€ 0
Honorarium notaris (incl. BTW)
€ 0
Totale kosten
€ 2.633
Totale kostprijs
€ 227.633

Simulatie leningkost

Gemiddelde maandelijkse afbetaling
Projectprijs
225.000
Eigen geld
25.000
Rente
2%
Looptijd
20 jaar

*Uitleg financiële voorstelling:

Dit is een richtinggevende schatting van de bijkomende kosten van je aankoop. Deze is afhankelijk van variabele factoren, waaronder volgende voorbeelden;

  • Zal de aankoop al dan niet jouw hoofdverblijfplaats worden?
  • Koop je aan als een natuurlijk persoon of als vennootschap?

Voor een uitgebreide berekening van de registratie-rechten en erelonen, kijk op berekeningsmodule - notaris.be. Andere kosten bij je notaris staan ook uitgelegd op notaris.be

*Registratierechten; 

  • De standaard registratierechten bij aankoop van een woning bedragen 12% van de aankoopprijs.
  • Registratirechten bij aankoop van de enige eigen woning bedragen 2% van de aankoopprijs. 

Er bestaat een bijkomende vermindering, bij aankoop van een woning onder € 220.000,00 of onder € 240.000,00 als deze in een centrumstad of de Vlaamse Rand gelegen is.

Dit alles onder voorbehoud van de voorwaarden die je kan terugvinden op vlaanderen.be

* Alle afmetingen op onze website zijn indicatief. 

Indeling

Gelijkvloers
Inkomhal
3,5 m2
Keuken
16,0 m2
Veranda
10,0 m2
Badkamer 1
4,0 m2
Stadstuin
18,0 m2
Doorgang
10,5 m2
Slaapkamer
16,5 m2
Bureau
16,5 m2

* afmetingen bij benadering

Wenst u meer informatie of een bezoek?

Stuur ons een bericht en u mag binnen de 24u een reactie van ons verwachten.

Vergelijkbare panden

Nieuw
ANTWERPEN
52 m2
1
B
Nieuw
ANTWERPEN
46 m2
1
2 m2
B
Nieuw

Uw favorieten

Hou me op de hoogte