Unieke, energiezuinige woning(EPC A) met 3 slaapkamers, 2 badkamers, terras with a view én inpandige multifunctionele garage, gelegen nabij de nieuwe Slachthuissite én Park Spoor Noord.

€ 449.000
Lange Slachterijstraat 25, 2060 ANTWERPEN
Ref. 15412
3
2
42
173 m2
11 m2

 

In deze her-opgewaardeerde buurt ontdek je deze kwaliteitsvolle woning die werd gerenoveerd volgens de regels van de kunst met oog voor detail en smaak.  Alles is tot in de puntjes vernieuwd. Je woont hier bovendien op een toplocatie met winkels, openbaar vervoer en het bruisende stadsleven op wandelafstand.

 

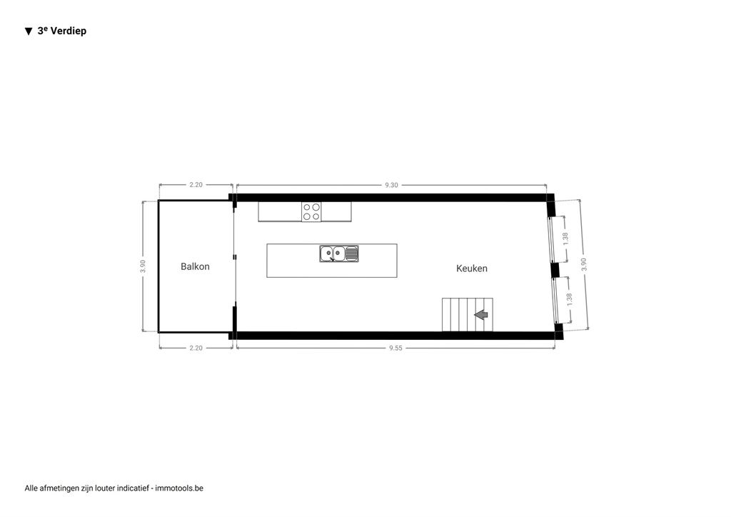
Leefkeuken met terras with a view

Bovenaan, op de derde verdieping, bevindt zich de volledig uitgeruste leefkeuken met kookeiland, nieuwe Siemens-toestellen (topkwaliteit gegarandeerd) en veel opbergruimte. Hier leef je letterlijk op het ritme van de zon: via het schuifraam stap je meteen op het zuidgerichte terras met lichte buitentegels. Een heerlijke plek om te ontbijten of ’s avonds de zon te zien ondergaan.

 

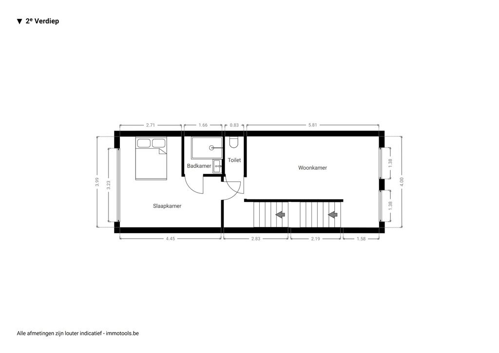
Masterbedroom én ensuite badkamer

Op de tweede verdieping ligt de ruime master bedroom (18 m²) en aansluitende badkamer met walk in regendouche en wastafel. Ook hier trekken de beige wandtegels en de donkere vloer de moderne lijn door. Daarnaast vind je op deze verdieping nog een gezellige, lichtrijke leefruimte aan de voorzijde van het huis.

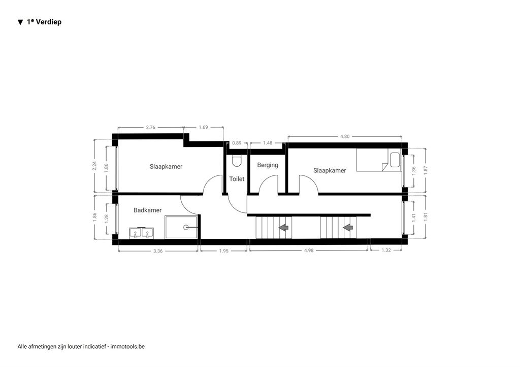
De eerste verdieping is praktisch ingedeeld met twee slaapkamers, een stijlvolle badkamer en  technische ruimte. De badkamer is afgewerkt met XL wandtegels, een inloopdouche met regendouchekop en een groot, dubbel lavabomeubel. De slaapkamers hebben allebei een onderhoudsvriendelijke parkettegel en grote raampartijen. Verder is er nog een apart toilet met handenwasser en een technische ruimte met de recente Vaillant-ketel en het ventilatiesysteem.

 

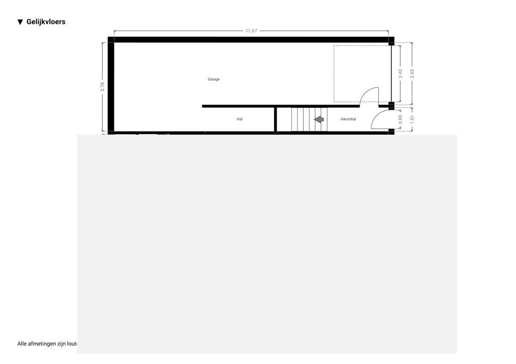
Multifunctionele garage

Op het gelijkvloers van de woning vind je een ruime inpandige garage van 42 m² met nieuwe automatische poort, betegelde vloer en extra bergruimte onder de trap. Je kan hier makkelijk je auto kwijt en dan nog heb je meer dan plaats genoeg  voor fietsen, gereedschap of andere spullen.  Evengoed geef je het een andere invulling als atelier, speelkamer of work out room.

Groen, stad & mobiliteit binnen handbereik
Met een Mobiscore van 9,3 woon je hier uitzonderlijk centraal. Tram, bus, metro, fietspaden en Velo-stations liggen vlakbij, net als de Singel en de Ring.
Op amper twee minuten wandelen ligt Park Spoor Noord: dé plek om te joggen, te ontspannen, kinderen te laten spelen of een terrasje te doen. In de omliggende straten vind je supermarkten, buurtwinkels en een fijne mix van authentieke cafés en eetadresjes.

Ringpark Lobroekdok & Slachthuissite: de toekomst voor je deur
Deze buurt staat bovendien aan de vooravond van een indrukwekkende vergroening. Met het Ringpark Lobroekdok wordt de Ring hier deels overkapt en omgevormd tot een groot, publiek parklandschap. Denk aan groene wandel- en fietspaden, pleinen, sport- en speelzones en een sterke verbinding tussen Park Spoor Noord, het Lobroekdok en de Slachthuissite.
Ook de Slachthuissite zelf wordt herontwikkeld tot een levendige stadswijk met ruimte voor wonen, werken, ontspanning en veel groen. Dit alles maakt dat je hier niet alleen vandaag fantastisch woont, maar ook investeert in een buurt met enorm toekomstpotentieel.

 

Wenst u meer informatie of een bezoek?

Stuur ons een bericht en u mag binnen de 24u een reactie van ons verwachten.

Troeven

  • Recent gerenoveerd gebouw(2025)
  • Vergunning van 2025
  • Buurt met meerwaarde in nabije toekomst
  • Unieke indeling en grootte
  • Aluminium schrijnwerk
  • EPC A
  • Ventilatiesysteem
  • EK conform
  • PID aanwezig
  • Asbestvrij

Gebouw

Staat
Gerenoveerd
Aantal verdiepingen
3
Bebouwing
Gesloten
Bouwjaar
1919
Renovatiejaar
2025
Beschikbaarheid
Bij akte

Comfort

Keuken
Volledig ingebouwd

Terrein

Bewoonbare oppervlakte
173 m2
Grondoppervlakte
48 m2
Living
16 m2
Terras
11 m2

* afmetingen bij benadering

Energie

EPC UC
11002-G-OMV_2021186123/EP13566/A002/D01/SD001
EPC
48 kWh/m2
  • f
  • e
  • d
  • c
  • b
  • a
  • a+
Elektrische keuring
Ja, conform AREI
Verwarming
Individueel - CV op gas
Beglazing
Dubbel
Dak
Plat dak

Stedenbouwkundige informatie

Stedenbouwkundige bestemming
Woongebied
Bouwvergunning
Niet van toepassing
Verkavelingsvergunning
Niet van toepassing
Voorkooprecht
Ja
Dagvaarding en herstelvordering
Geen rechterlijke herstelmaatregel of bestuurlijke maatregel opgelegd
Overstromingsgevoelig gebied
Nee
G-score
Klasse C
P-score
Klasse C
Bodemattest
Aanwezig

Financieel

Prijs
€ 449.000
Kadastraal inkomen
€ 1.078
Huidige gemeensch. kosten p/m
€ 0

Registratiekosten en kostprijs berekenen voor

  • 12%
  • 2%
Registratierechten*
€ 53.880
Honorarium notaris
€ 2.591
Honorarium notaris (incl. BTW)
€ 3.135
Totale kosten
€ 57.015
Totale kostprijs
€ 506.015
Registratierechten*
€ 8.980
Honorarium notaris
€ 2.591
Honorarium notaris (incl. BTW)
€ 3.135
Totale kosten
€ 12.115
Totale kostprijs
€ 461.115

Simulatie leningkost

Gemiddelde maandelijkse afbetaling
Projectprijs
449.000
Eigen geld
25.000
Rente
2%
Looptijd
20 jaar

*Uitleg financiële voorstelling:

Dit is een richtinggevende schatting van de bijkomende kosten van je aankoop. Deze is afhankelijk van variabele factoren, waaronder volgende voorbeelden;

  • Zal de aankoop al dan niet jouw hoofdverblijfplaats worden?
  • Koop je aan als een natuurlijk persoon of als vennootschap?

Voor een uitgebreide berekening van de registratie-rechten en erelonen, kijk op berekeningsmodule - notaris.be. Andere kosten bij je notaris staan ook uitgelegd op notaris.be

*Registratierechten; 

  • De standaard registratierechten bij aankoop van een woning bedragen 12% van de aankoopprijs.
  • Registratirechten bij aankoop van de enige eigen woning bedragen 2% van de aankoopprijs. 

Er bestaat een bijkomende vermindering, bij aankoop van een woning onder € 220.000,00 of onder € 240.000,00 als deze in een centrumstad of de Vlaamse Rand gelegen is.

Dit alles onder voorbehoud van de voorwaarden die je kan terugvinden op vlaanderen.be

* Alle afmetingen op onze website zijn indicatief. 

Indeling

Gelijkvloers
Inkomhal
3,0 m2
Garage
42,0 m2
Eerste verdieping
Hal
7,0 m2
Badkamer 1
7,0 m2
Slaapkamer 1
9,5 m2
Toilet 1
1,0 m2
Technische ruimte
3,0 m2
Slaapkamer 2
9,0 m2
Tweede verdieping
Slaapkamer 3
18,0 m2
Toilet 2
1,0 m2
Badkamer 2
3,0 m2
Woonkamer
16,0 m2
Hal
5,0 m2
Derde verdieping
Keuken
35,0 m2

* afmetingen bij benadering

Wenst u meer informatie of een bezoek?

Stuur ons een bericht en u mag binnen de 24u een reactie van ons verwachten.

Vergelijkbare panden

In de kijker
ANTWERPEN
230 m2
4
99 m2
B
ANTWERPEN
899 m2
15
78 m2
E
Optie
ANTWERPEN
362 m2
5
55 m2
B

Uw favorieten

Hou me op de hoogte