Lichtrijke luxe bel-etage met prachtige tuin in rustige woonwijk op Linkeroever

In de kijker
€ 619.000
Schillerstraat 4, 2050 ANTWERPEN
Ref. 15336
4
2
1
230 m2
99 m2

Wonen op Linkeroever, op wandelafstand van het Sint-Annastrand en de jachthaven? In deze rustige, groene woonwijk vind je deze instapklare bel-etage. Met haar hoogwaardige afwerking, royale volumes en zonnige tuin is dit een woning waar comfort en stijl hand in hand gaan.

 

Ruimte, licht en mogelijkheden

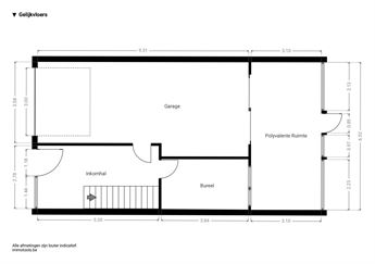
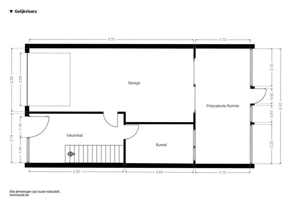
Binnenkomen doe je via een ruime inkomhal met een glazen designdeur die meteen zorgt voor een open en lichtrijk gevoel. De ingemaakte kasten houden alles netjes uit het zicht, terwijl de trap je uitnodigt om verder te ontdekken.  Op het gelijkvloers zit een enorme troef: een inpandige garage van ca. 38,5 m² met zeeën van opbergruimte. Aansluitend ligt een polyvalente ruimte die perfect kan dienen als hobbyruimte, praktijk, speelkamer of zelfs thuiskantoor. Dankzij de grote raampartijen en de directe connectie met de tuin voelt deze ruimte allesbehalve secundair aan.  Ook een aparte bureauruimte maakt thuiswerken hier bijzonder aangenaam.

 

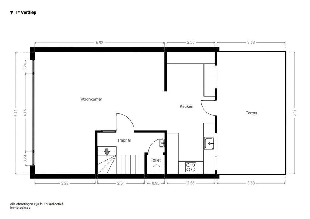
Leven op niveau

De eerste verdieping is zonder twijfel het hart van de woning. Hier vloeien licht, ruimte en comfort moeiteloos in elkaar over. De leefruimte baadt in het daglicht dankzij de grote ramen en voelt extra warm aan door de mooie parketvloer en de strakke afwerking. Aansluitend ligt de open keuken, een echte eyecatcher met haar minimalistische witte design, composieten werkblad en kwalitatieve toestellen. Hier kook je met zicht op buiten én in verbinding met je gasten.

Vanuit de keuken stap je zo het terras op – perfect voor een aperitiefje in de zon – met een open zicht op de tuin.

 

Groen genieten, elke dag opnieuw

Achteraan wacht een verrassend mooie, onderhoudsvriendelijke tuin. Een combinatie van groen, terrassen en gezellige hoekjes zorgt ervoor dat je hier op elk moment van de dag een fijne plek vindt. De vijver en volwassen beplanting geven de tuin een unieke, rustgevende sfeer.  Dit is zo’n buitenruimte waar je meteen wil blijven hangen, van eerste koffie tot lange zomeravonden.

 

Slaapverdieping met hotelgevoel

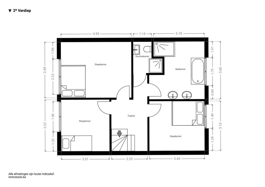
Op de tweede verdieping bevinden zich drie volwaardige slaapkamers, allemaal lichtrijk en netjes afgewerkt. Ideaal voor een gezin, maar evengoed perfect in te richten als dressing of bureau.  De badkamer is ruim en stijlvol, met ligbad, inloopdouche en dubbele wastafel – strak, licht en helemaal van nu. Daarnaast is er nog een tweede douchekamer, wat het comfort alleen maar verhoogt.

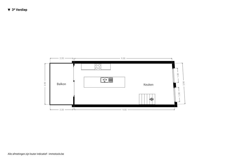
Nog een trapje hoger vind je een gezellige zolderruimte met karaktervolle balken en veel lichtinval. Ideaal als extra slaapkamer, hobbyruimte of rustige werkplek.

 

Rustig wonen, vlak bij de stad

Hier woon je in een kalme, residentiële buurt op Linkeroever, met het strand, de jachthaven en groene wandelplekken op wandelafstand. Ook voor de sportievelingen situeert zich een heleboel om de hoek: Een tennisclub, een manege en een openluchtzwembad vind je dichtbij. Tegelijk ben je via de Sint-Annatunnel of het openbaar vervoer zo in het centrum van Antwerpen. Denk aan de gratis veerboot en waterbus je die zo aan de andere kant van het water brengen. Rust en bereikbaarheid gaan hier perfect samen.

 

Wenst u meer informatie of een bezoek?

Stuur ons een bericht en u mag binnen de 24u een reactie van ons verwachten.

Troeven

  • instapklaar
  • hoogwaardige afwerking
  • ca. 230 m² bewoonbare opp.
  • enorme inpandige garage
  • polyvalente ruimte
  • zonnige, onderhoudsvriendelijke tuin
  • terras
  • 9 zonnepanelen
  • zeer gunstig EPC (B)

Gebouw

Staat
Direct bewoonbaar
Aantal verdiepingen
3
Bebouwing
Gesloten
Bouwjaar
1968
Beschikbaarheid
Overeen te komen

Comfort

Keuken
Alle comfort
Aansluiting gas
Ja
Zolder
Ja

Terrein

Bewoonbare oppervlakte
230 m2
Grondoppervlakte
205 m2
Living
37,5 m2
Tuin
76 m2
Terras
23,5 m2

* afmetingen bij benadering

Energie

EPC UC
20251013-0003707852-RES-1
EPC
190 kWh/m2
  • f
  • e
  • d
  • c
  • b
  • a
  • a+
Elektrische keuring
Ja, conform AREI
Verwarming
Individueel - CV op gas
Beglazing
Dubbel
Dak
Zadeldak

Stedenbouwkundige informatie

Stedenbouwkundige bestemming
Woongebied
Bouwvergunning
Niet van toepassing
Verkavelingsvergunning
Niet van toepassing
Voorkooprecht
Nee
Dagvaarding en herstelvordering
Geen rechterlijke herstelmaatregel of bestuurlijke maatregel opgelegd
Stedenbouwkundig uittreksel uitgegeven
Op 27/01/2026, door de gemeente Antwerpen, met referentie VIP-00739245
Overstromingsgevoelig gebied
Nee
G-score
Klasse A
P-score
Klasse B

Financieel

Prijs
€ 619.000
Huidige gemeensch. kosten p/m
€ 0

Registratiekosten en kostprijs berekenen voor

  • 12%
  • 2%
Registratierechten*
€ 74.280
Honorarium notaris
€ 2.659
Honorarium notaris (incl. BTW)
€ 3.218
Totale kosten
€ 77.498
Totale kostprijs
€ 696.498
Registratierechten*
€ 12.380
Honorarium notaris
€ 2.659
Honorarium notaris (incl. BTW)
€ 3.218
Totale kosten
€ 15.598
Totale kostprijs
€ 634.598

Simulatie leningkost

Gemiddelde maandelijkse afbetaling
Projectprijs
619.000
Eigen geld
25.000
Rente
2%
Looptijd
20 jaar

*Uitleg financiële voorstelling:

Dit is een richtinggevende schatting van de bijkomende kosten van je aankoop. Deze is afhankelijk van variabele factoren, waaronder volgende voorbeelden;

  • Zal de aankoop al dan niet jouw hoofdverblijfplaats worden?
  • Koop je aan als een natuurlijk persoon of als vennootschap?

Voor een uitgebreide berekening van de registratie-rechten en erelonen, kijk op berekeningsmodule - notaris.be. Andere kosten bij je notaris staan ook uitgelegd op notaris.be

*Registratierechten; 

  • De standaard registratierechten bij aankoop van een woning bedragen 12% van de aankoopprijs.
  • Registratirechten bij aankoop van de enige eigen woning bedragen 2% van de aankoopprijs. 

Er bestaat een bijkomende vermindering, bij aankoop van een woning onder € 220.000,00 of onder € 240.000,00 als deze in een centrumstad of de Vlaamse Rand gelegen is.

Dit alles onder voorbehoud van de voorwaarden die je kan terugvinden op vlaanderen.be

* Alle afmetingen op onze website zijn indicatief. 

Indeling

Gelijkvloers
Inkomhal
16,0 m2
Garage
39,0 m2
Bureau
9,5 m2
Polyvalente ruimte
22,0 m2
Eerste verdieping
Hal
4,0 m2
Toilet 1
1,0 m2
Woonkamer
37,5 m2
Keuken
18,5 m2
Terras 1
23,5 m2
Tweede verdieping
Nachthal
8,0 m2
Slaapkamer 1
12,0 m2
Slaapkamer 2
17,0 m2
Slaapkamer 3
12,0 m2
Badkamer 1
13,0 m2
Badkamer 2
3,0 m2
Derde verdieping
Slaapkamer 4
18,0 m2
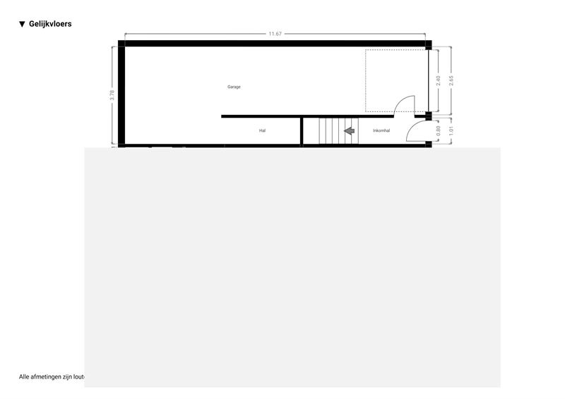
Gelijkvloers
Voortuin + oprit
39,0 m2
Tuin
76,0 m2

* afmetingen bij benadering

Wenst u meer informatie of een bezoek?

Stuur ons een bericht en u mag binnen de 24u een reactie van ons verwachten.

Vergelijkbare panden

ANTWERPEN
899 m2
15
78 m2
E
ANTWERPEN
173 m2
3
11 m2
A
Optie
ANTWERPEN
362 m2
5
55 m2
B

Uw favorieten

Hou me op de hoogte