Ruime handelsruimte met hoge plafonds, EPC B en grote visibiliteit in bruisende buurt nabij Sint-Jansplein

€ 199.000
Van Maerlantstraat 7, 2060 ANTWERPEN
Ref. 15345
110 m2

Op zoek naar een ruime handelszaak met veel passage? Deze gelijkvloerse commerciële ruimte van ca. 110 m² combineert een grote open ruimte, hoge plafonds en een topligging vlakbij het Sint-Jansplein, het Centraal Station en de Rooseveltplaats. Ideaal voor een dagzaak die gezien mag worden!

Ruimte & mogelijkheden

Deze handelsruimte bevindt zich op het gelijkvloers van een kleinschalig gebouw met een charmante art-deco gevel. Vooraan geniet je van een groot etalageraam, wat zorgt voor maximale visibiliteit en een sterke commerciële uitstraling. Dankzij de ligging in een levendige straat met veel passage springt jouw zaak hier meteen in het oog.

De ruimte zelf is bijzonder ruim en open, afgewerkt met een lichte laminaatvloer en hoge plafonds van maar liefst 3,3 meter. Dit geeft niet alleen een aangenaam ruimtelijk gevoel, maar biedt ook praktische voordelen voor inrichting, stockage of creatieve invulling. Achteraan is er voldoende plaats voorzien om eventueel een keuken of werkruimte te installeren, volledig naar eigen noden en concept.

Via aparte deuren heb je toegang tot zowel de algemene delen als een afzonderlijke toiletruimte. Deze laatste is volledig betegeld en uitgerust met een toilet en wastafel — praktisch en netjes afgewerkt.

Levendige buurt met alles binnen handbereik

Gelegen in een bruisende wijk in Antwerpen Noord, zit je hier op wandelafstand van het Sint-Jansplein, een hotspot met tal van eetgelegenheden en internationale  handelszaken. Ook de Paardenmarkt en het hippe Eilandje liggen vlakbij.

Mobiliteit is hier een grote troef: met het Centraal Station en de Rooseveltplaats op korte afstand heb je toegang tot een uitgebreid netwerk van trams en bussen. Ideaal voor zowel klanten als medewerkers.

Wenst u meer informatie of een bezoek?

Stuur ons een bericht en u mag binnen de 24u een reactie van ons verwachten.

Troeven

  • EPC B
  • ruime handelsruimte (ca. 110 m²)
  • hoge plafonds (3,3 m)
  • groot etalageraam met veel visibiliteit
  • veel passage
  • aparte nutsvoorzieningen (gas, water, elektriciteit)
  • lage algemene kosten

Gebouw

Staat
Goede staat
Aantal verdiepingen
4
Bebouwing
Gesloten
Beschikbaarheid
Bij akte

Comfort

Aansluiting gas
Ja

Terrein

Bewoonbare oppervlakte
110 m2
Grondoppervlakte
145 m2
Winkel
108 m2

* afmetingen bij benadering

Energie

EPC UC
20260409-0003838203-KNR-1
EPC
Info aangevraagd
  • f
  • e
  • d
  • c
  • b
  • a
  • a+
Elektrische keuring
Ja, niet conform AREI
Verwarming
Individueel - CV op gas
Beglazing
Dubbel
Dak
Niet meegedeeld

Stedenbouwkundige informatie

Stedenbouwkundige bestemming
Woongebied
Bouwvergunning
Niet van toepassing
Verkavelingsvergunning
Niet van toepassing
Voorkooprecht
Info aangevraagd
Dagvaarding en herstelvordering
Info aangevraagd
Overstromingsgevoelig gebied
Nee
G-score
Klasse C
P-score
Klasse C

Financieel

Prijs
€ 199.000
Huidige gemeensch. kosten p/m
€ 60

elektriciteit GD, lift, blokpolis

Registratiekosten en kostprijs berekenen voor

  • 12%
  • 12%
Registratierechten*
€ 23.880
Honorarium notaris
€ 2.158
Honorarium notaris (incl. BTW)
€ 2.611
Totale kosten
€ 26.491
Totale kostprijs
€ 225.491
Registratierechten*
€ 23.880
Honorarium notaris
€ 2.158
Honorarium notaris (incl. BTW)
€ 2.611
Totale kosten
€ 26.491
Totale kostprijs
€ 225.491

Simulatie leningkost

Gemiddelde maandelijkse afbetaling
Projectprijs
199.000
Eigen geld
25.000
Rente
2%
Looptijd
20 jaar

*Uitleg financiële voorstelling:

Dit is een richtinggevende schatting van de bijkomende kosten van je aankoop. Deze is afhankelijk van variabele factoren, waaronder volgende voorbeelden;

  • Zal de aankoop al dan niet jouw hoofdverblijfplaats worden?
  • Koop je aan als een natuurlijk persoon of als vennootschap?

Voor een uitgebreide berekening van de registratie-rechten en erelonen, kijk op berekeningsmodule - notaris.be. Andere kosten bij je notaris staan ook uitgelegd op notaris.be

*Registratierechten; 

  • De standaard registratierechten bij aankoop van een woning bedragen 12% van de aankoopprijs.
  • Registratirechten bij aankoop van de enige eigen woning bedragen 2% van de aankoopprijs. 

Er bestaat een bijkomende vermindering, bij aankoop van een woning onder € 220.000,00 of onder € 240.000,00 als deze in een centrumstad of de Vlaamse Rand gelegen is.

Dit alles onder voorbehoud van de voorwaarden die je kan terugvinden op vlaanderen.be

* Alle afmetingen op onze website zijn indicatief. 

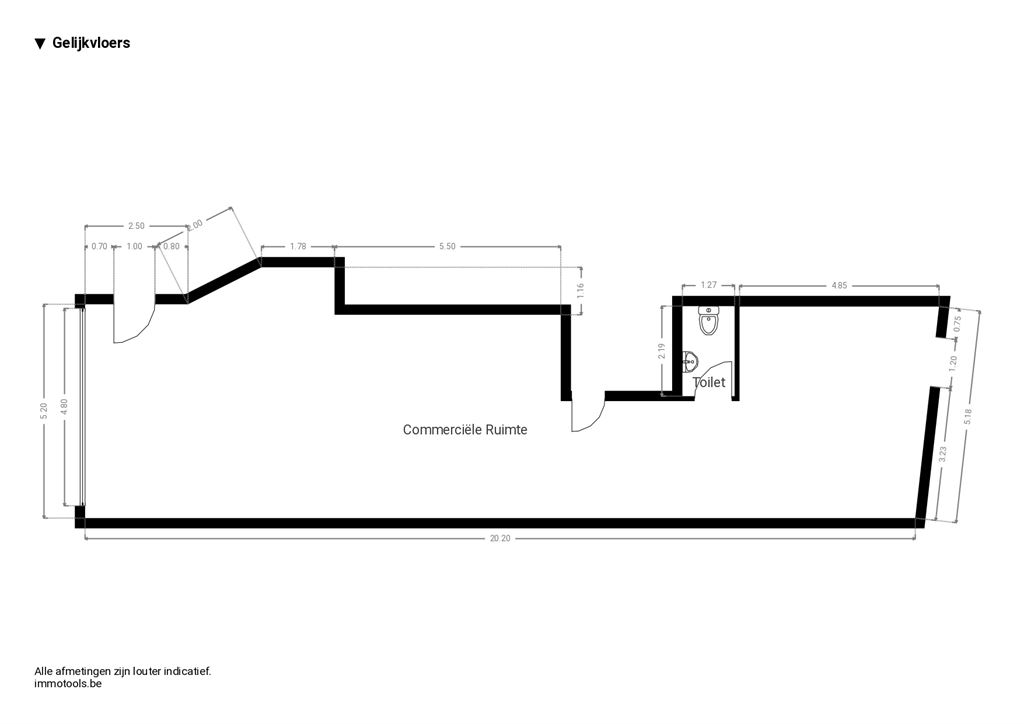
Indeling

Gelijkvloers
Handelsruimte
108,0 m2
Toilet
2,5 m2

* afmetingen bij benadering

Wenst u meer informatie of een bezoek?

Stuur ons een bericht en u mag binnen de 24u een reactie van ons verwachten.

Vergelijkbare panden

Nieuw
ANTWERPEN
427 m2
5
70 m2
B
ANTWERPEN
2080 m2
25
155 m2
X
ANTWERPEN
899 m2
15
78 m2
E

Uw favorieten

Hou me op de hoogte