Karaktervolle burgerwoning met 4 slaapkamers, zonnige tuin en prachtige authentieke elementen

€ 439.000
Zwarteleeuwstraat 38, 2140 BORGERHOUT
Ref. 15334
4
1
144 m2
32 m2

 

Op zoek naar een warme thuis in de stad, met karakter én ruimte? In deze rustige, opkomende buurt tussen Park Spoor Noord en het Rivierenhof woon je heerlijk centraal, omringd door jonge gezinnen, leuke buurtwinkels en pleintjes. Deze charmante woning combineert licht, authenticiteit en een praktische indeling met een gezellige stadstuin als extra troef.

 

Charmant & lichtrijk wonen

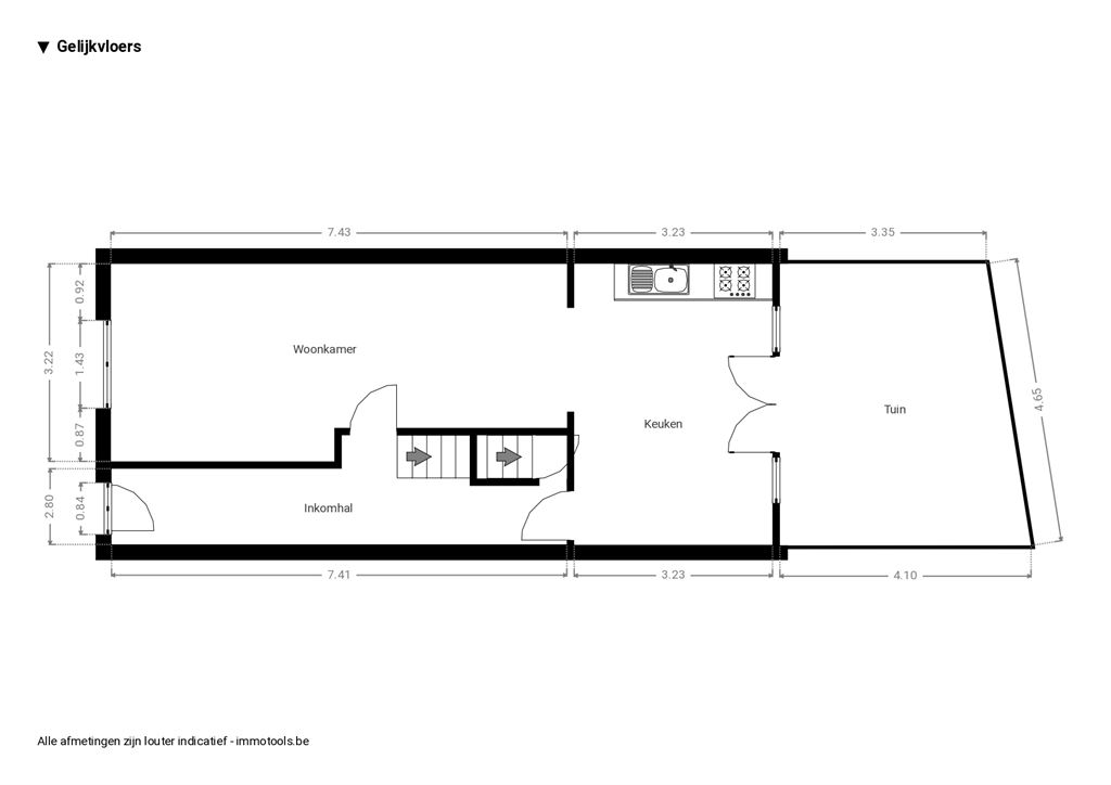
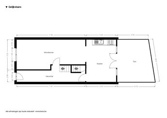
Binnenkomen doe je via een ruime inkomhal met prachtige cementtegels en een originele trap die meteen de toon zet. De hoge plafonds en sierlijke moluren zorgen voor een open en elegante sfeer die je doorheen de hele woning voelt.

Vooraan bevindt zich de leefruimte, een aangename plek waar het daglicht rijkelijk binnenvalt. Dankzij de zuidgerichte oriëntatie en de vele ramen voelt het hier altijd licht en luchtig aan. De warme plankenvloer en de open connectie met de keuken maken dit tot een gezellige plek om te ontspannen of gasten te ontvangen.   Deze keuken is praktisch ingericht met een donker houten look en een natuurstenen werkblad. Hier kook je met plezier, terwijl er nog voldoende plaats is voor een eettafel. Via de dubbele glazen deur wandel je zo naar buiten.

De stadstuin is een echte bonus: zuidgericht, onderhoudsvriendelijk en met een charmant groen accent dankzij de begroeiing. Ideaal voor lange zomeravonden of een rustige koffiepauze in de zon.

 

Ruimte voor het hele gezin

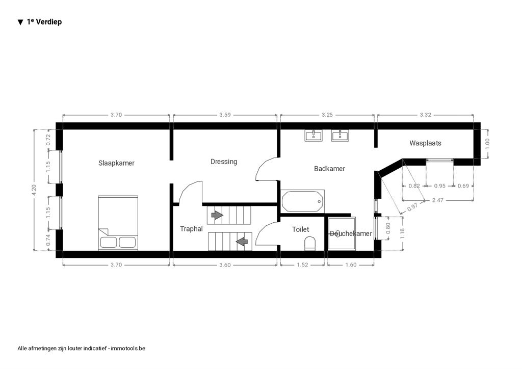
Op de tussenverdieping vind je een apart gastentoilet met natuurlijk licht – altijd handig.

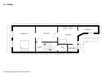
De eerste verdieping voelt ruim en comfortabel aan. Vooraan ligt een grote slaapkamer met hoge plafonds, een mooie, witmarmeren sierschouw en grote ramen. Aansluitend bevindt zich een tweede kamer die perfect kan dienen als dressing, bureau of kinderkamer.

 

De badkamer is verrassend groot en volledig uitgerust: een ligbad, inloopdouche, dubbele lavabo, tweede toilet én plaats voor was- en droogmachine. Hier start en eindigt je dag in alle comfort.

Nog een verdieping hoger wachten twee extra slaapkamers, beide volwaardig en aangenaam licht. Achteraan heb je bovendien toegang tot een ruim, zonnig dakterras (niet vergund), waar je in alle rust van de zon geniet.

Extra bergruimte nodig? De droge kelder van zo’n ca 32 m² biedt meer dan voldoende plaats.

 

Levendige buurt met alles dichtbij

Hier woon je rustig, maar nooit afgezonderd. Op wandel- of fietsafstand liggen zowel Park Spoor Noord als het Rivierenhof – ideaal voor sport, ontspanning of een picknick in het groen. Winkels, scholen en openbaar vervoer zijn vlot bereikbaar, en ook de Ring ligt vlakbij. Een locatie die het beste van stad en buurtgevoel combineert.

 

 

Wenst u meer informatie of een bezoek?

Stuur ons een bericht en u mag binnen de 24u een reactie van ons verwachten.

Troeven

  • authentieke elementen
  • hoge plafonds (3,25 m)
  • veel natuurlijk licht
  • 4 slaapkamers
  • ruime badkamer (20 m²)
  • zonnige stadstuin (zuid)
  • droge kelder (32 m²)
  • rolluiken
  • EK conform
  • gunstig EPC
  • topligging tussen Park Spoor Noord en Rivierenhof

Gebouw

Staat
Goede staat
Aantal verdiepingen
0
Bebouwing
Gesloten
Beschikbaarheid
Bij akte

Comfort

Keuken
Alle comfort
Kelder
Ja

Terrein

Bewoonbare oppervlakte
144 m2
Grondoppervlakte
69 m2
Living
24 m2
Tuin
16 m2
Terras
16,5 m2
Breedte grond
4,5 m
Diepte
15 m
Gevelbreedte
4,5 m

* afmetingen bij benadering

Energie

EPC UC
20220512-0002602598-RES-1
EPC
282 kWh/m2
  • f
  • e
  • d
  • c
  • b
  • a
  • a+
Elektrische keuring
Ja, conform AREI
Verwarming
Individueel - CV op gas
Beglazing
Dubbel
Dak
Plat dak

Stedenbouwkundige informatie

Stedenbouwkundige bestemming
Woongebied
Bouwvergunning
Niet van toepassing
Verkavelingsvergunning
Niet van toepassing
Voorkooprecht
Nee
Dagvaarding en herstelvordering
Geen rechterlijke herstelmaatregel of bestuurlijke maatregel opgelegd
Overstromingsgevoelig gebied
Nee
G-score
Klasse C
P-score
Klasse C

Financieel

Prijs
€ 439.000
Kadastraal inkomen
€ 537
Huidige gemeensch. kosten p/m
€ 0

Registratiekosten en kostprijs berekenen voor

  • 12%
  • 2%
Registratierechten*
€ 52.680
Honorarium notaris
€ 2.557
Honorarium notaris (incl. BTW)
€ 3.094
Totale kosten
€ 55.774
Totale kostprijs
€ 494.774
Registratierechten*
€ 8.780
Honorarium notaris
€ 2.557
Honorarium notaris (incl. BTW)
€ 3.094
Totale kosten
€ 11.874
Totale kostprijs
€ 450.874

Simulatie leningkost

Gemiddelde maandelijkse afbetaling
Projectprijs
439.000
Eigen geld
25.000
Rente
2%
Looptijd
20 jaar

*Uitleg financiële voorstelling:

Dit is een richtinggevende schatting van de bijkomende kosten van je aankoop. Deze is afhankelijk van variabele factoren, waaronder volgende voorbeelden;

  • Zal de aankoop al dan niet jouw hoofdverblijfplaats worden?
  • Koop je aan als een natuurlijk persoon of als vennootschap?

Voor een uitgebreide berekening van de registratie-rechten en erelonen, kijk op berekeningsmodule - notaris.be. Andere kosten bij je notaris staan ook uitgelegd op notaris.be

*Registratierechten; 

  • De standaard registratierechten bij aankoop van een woning bedragen 12% van de aankoopprijs.
  • Registratirechten bij aankoop van de enige eigen woning bedragen 2% van de aankoopprijs. 

Er bestaat een bijkomende vermindering, bij aankoop van een woning onder € 220.000,00 of onder € 240.000,00 als deze in een centrumstad of de Vlaamse Rand gelegen is.

Dit alles onder voorbehoud van de voorwaarden die je kan terugvinden op vlaanderen.be

* Alle afmetingen op onze website zijn indicatief. 

Indeling

Gelijkvloers
Inkomhal
10,5 m2
Leefruimte
24,0 m2
Keuken
15,5 m2
Tuin
16,5 m2
Tussenverdiep 1
Overloop 1
1,2 m2
Toilet 1
2,0 m2
Eerste verdieping
Overloop
2,5 m2
Slaapkamer 1
17,0 m2
Dressing
10,0 m2
Badkamer 1
19,0 m2
Tussenverdiep 2
Overloop
1,5 m2
Tweede verdieping
Gang
2,5 m2
Slaapkamer 3
17,0 m2
Slaapkamer 4
10,0 m2
Kelder(-1)
Kelder
32,0 m2

* afmetingen bij benadering

Wenst u meer informatie of een bezoek?

Stuur ons een bericht en u mag binnen de 24u een reactie van ons verwachten.

Vergelijkbare panden

Nieuw
BORGERHOUT
265 m2
5
87 m2
F
Optie

Eengezinswoning

€ 499.000
BORGERHOUT
234 m2
3
125 m2
C

Uw favorieten

Hou me op de hoogte