Te renoveren woning met authentieke elementen, veel ruimte en zonnige tuin

Nieuw
€ 379.000
Beekstraat 18, 2140 BORGERHOUT
Ref. 15497
5
2
265 m2
87 m2

 

Zin in een make-overproject met een stevige dosis charme? Dan is deze woning in de Beekstraat er eentje om te onthouden. Achter de authentieke gevel schuilt een uitzonderlijk ruime woning met hoge plafonds, sierschouwen, plankenvloeren, een fijne stadstuin en massa’s mogelijkheden om er opnieuw een echte parel van te maken.

 

Authentiek, ruim en klaar voor een nieuw verhaal

Achter de charmante gevel schuilt een woning die vraagt om een grondige renovatie, maar tegelijk heel veel teruggeeft aan wie er z’n schouders onder zet. In de inkomhal valt meteen de mooie vloer op, samen met de authentieke trap en de originele wandafwerking. Doorheen de woning keren die karaktervolle elementen terug: plankenvloeren, sierschouwen, hoge plafonds en royale ruimtes die je vandaag nog helemaal naar je hand kunt zetten. Net dat maakt dit zo’n boeiend pand: je koopt hier geen afgewerkt verhaal, maar een karakterhuis dat je nog volledig naar je eigen smaak kunt herschrijven.

Op het gelijkvloers heb je vooraan de leefruimte en eetkamer, met veel lichtinval en mooie authentieke details. Achteraan sluiten veranda en keuken aan op de tuin, waardoor je hier een heel fijne woonlaag kunt creëren met zicht op het groen. De tuin is discreet gelegen en heeft alles in huis om uit te groeien tot een heerlijke stadsoase. Achteraan heb je bovendien nog extra ruimte die perfect kan dienen als berging, atelier, hobbyplek of werkruimte.

 

Groot huis, veel kamers

Op de eerste verdieping vind je twee ruime slaapkamers met veel licht en opnieuw die fijne authentieke sfeer. De tussenverdieping achteraan is vandaag ingericht als wasplaats, maar leent zich perfect tot een extra badkamer of een andere praktische invulling. Op de tweede verdieping heb je nog eens drie slaapkamers, ideaal voor kinderen, logees, dressing, bureau of hobbykamer. Daarnaast is er een royale badkamerruimte met zicht op de tuin, waar je echt iets moois van kunt maken. Helemaal bovenaan heb je nog een zolderverdieping met verschillende ruimtes, die je kunt benutten als home office, hobbyplek, opslag of extra kamers. Plaats tekort? Niet meteen hier.

 

Levendige buurt met alles dichtbij

Je woont hier op wandelafstand van het Laar, een fijne plek waar buren elkaar ontmoeten en waar het typische Borgerhoutse leven zich afspeelt. De Turnhoutsebaan ligt om de hoek, dus buurtwinkels, supermarkten en openbaar vervoer zijn nooit ver weg. Ook qua groen zit je goed, met Park Spoor Oost, Park Spoor Noord en het Rivierenhof op fietsafstand. Een levendige, centrale ligging dus, waar je vlot de stad in en uit geraakt én alles dichtbij hebt.

 

Wenst u meer informatie of een bezoek?

Stuur ons een bericht en u mag binnen de 24u een reactie van ons verwachten.

Troeven

  • uitzonderlijk veel potentieel
  • authentieke elementen
  • mooie plankenvloeren
  • zeer ruime woning
  • tal van indelingsmogelijkheden
  • zolder met verschillende polyvalente ruimtes
  • kelder
  • fijne ligging vlak bij het Laar
  • Parken op fietsafstand

Gebouw

Staat
Te renoveren
Aantal verdiepingen
3
Bebouwing
Gesloten
Beschikbaarheid
Bij akte

Comfort

Keuken
Te renoveren
Zolder
Ja
Kelder
Ja

Terrein

Bewoonbare oppervlakte
265 m2
Grondoppervlakte
176 m2
Living
30 m2
Tuin
87 m2
Breedte grond
5 m
Diepte
34 m
Gevelbreedte
5 m

* afmetingen bij benadering

Energie

EPC UC
20250226-0003540637-RES-1
EPC
Renovatieplicht 666 kWh/m2
  • f
  • e
  • d
  • c
  • b
  • a
  • a+
Elektrische keuring
-
Verwarming
Individueel - CV op gas
Beglazing
Enkel
Dak
Zadeldak

Stedenbouwkundige informatie

Stedenbouwkundige bestemming
Woongebied
Bouwvergunning
Info aangevraagd
Verkavelingsvergunning
Niet van toepassing
Voorkooprecht
Info aangevraagd
Dagvaarding en herstelvordering
Geen rechterlijke herstelmaatregel of bestuurlijke maatregel opgelegd
Overstromingsgevoelig gebied
Nee
G-score
Klasse D
P-score
Klasse D
Bodemattest
Info aangevraagd

Financieel

Prijs
€ 379.000
Kadastraal inkomen
€ 771
Huidige gemeensch. kosten p/m
€ 0

Registratiekosten en kostprijs berekenen voor

  • 12%
  • 2%
Registratierechten*
€ 45.480
Honorarium notaris
€ 2.523
Honorarium notaris (incl. BTW)
€ 3.052
Totale kosten
€ 48.532
Totale kostprijs
€ 427.532
Registratierechten*
€ 7.580
Honorarium notaris
€ 2.523
Honorarium notaris (incl. BTW)
€ 3.052
Totale kosten
€ 10.632
Totale kostprijs
€ 389.632

Simulatie leningkost

Gemiddelde maandelijkse afbetaling
Projectprijs
379.000
Eigen geld
25.000
Rente
2%
Looptijd
20 jaar

*Uitleg financiële voorstelling:

Dit is een richtinggevende schatting van de bijkomende kosten van je aankoop. Deze is afhankelijk van variabele factoren, waaronder volgende voorbeelden;

  • Zal de aankoop al dan niet jouw hoofdverblijfplaats worden?
  • Koop je aan als een natuurlijk persoon of als vennootschap?

Voor een uitgebreide berekening van de registratie-rechten en erelonen, kijk op berekeningsmodule - notaris.be. Andere kosten bij je notaris staan ook uitgelegd op notaris.be

*Registratierechten; 

  • De standaard registratierechten bij aankoop van een woning bedragen 12% van de aankoopprijs.
  • Registratirechten bij aankoop van de enige eigen woning bedragen 2% van de aankoopprijs. 

Er bestaat een bijkomende vermindering, bij aankoop van een woning onder € 220.000,00 of onder € 240.000,00 als deze in een centrumstad of de Vlaamse Rand gelegen is.

Dit alles onder voorbehoud van de voorwaarden die je kan terugvinden op vlaanderen.be

* Alle afmetingen op onze website zijn indicatief. 

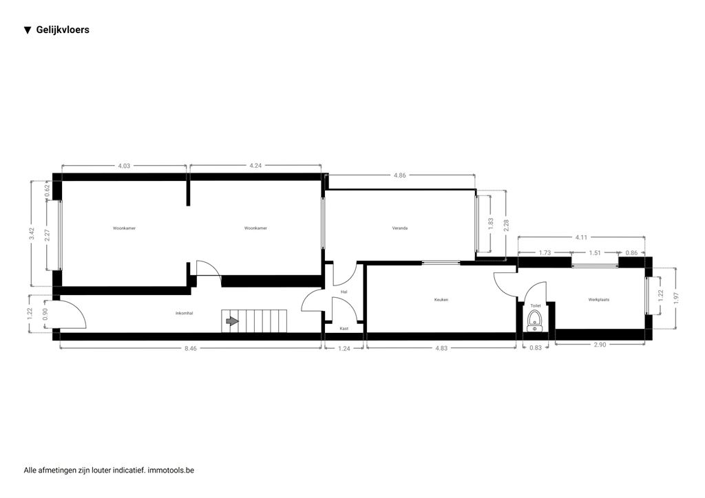
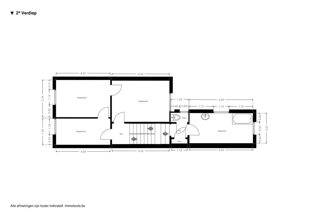
Indeling

Kelder(-1)
Kelder
35,0 m2
Gelijkvloers
Inkomhal
9,0 m2
Woonkamer
30,0 m2
Keuken
10,0 m2
Werkplaats
9,0 m2
Toilet 1
1,0 m2
Tussenverdiep 1
Badkamer 1
11,0 m2
Toilet 2
1,0 m2
Eerste verdieping
Slaapkamer 1
14,0 m2
Slaapkamer 2
20,0 m2
Tussenverdiep 2
Badkamer 1
11,0 m2
Toilet 2
1,0 m2
Tweede verdieping
Slaapkamer 3
13,0 m2
Slaapkamer 4
11,0 m2
Slaapkamer 5
7,0 m2
Zolder
Kamer 1
9,0 m2
Kamer 2
6,0 m2
Kamer 3
7,0 m2
Gelijkvloers
Veranda
12,0 m2

* afmetingen bij benadering

Wenst u meer informatie of een bezoek?

Stuur ons een bericht en u mag binnen de 24u een reactie van ons verwachten.

Vergelijkbare panden

BORGERHOUT
144 m2
4
32 m2
C
Optie

Eengezinswoning

€ 499.000
BORGERHOUT
234 m2
3
125 m2
C

Uw favorieten

Hou me op de hoogte