Te renoveren woning met grote tuin en vier slaapkamers in rustig Deurne-Zuid

Nieuw
€ 295.000
Manebruggestraat 51, 2100 DEURNE
Ref. 15513
4
1
163 m2
110 m2

Op zoek naar een woning met potentieel én een fantastische ligging? Deze ruime rijwoning in een rustige straat van Deurne-Zuid biedt je alle basis die je nodig hebt: een brede leefruimte, grote open keuken, 4 volwaardige slaapkamers, badkamer én een diepe, zonnige tuin. Mét leuke voortuin én een extra toegangsdeur naar de kelder — ideaal voor fietsen. De perfecte kans om je eigen thuis volledig naar smaak te renoveren.

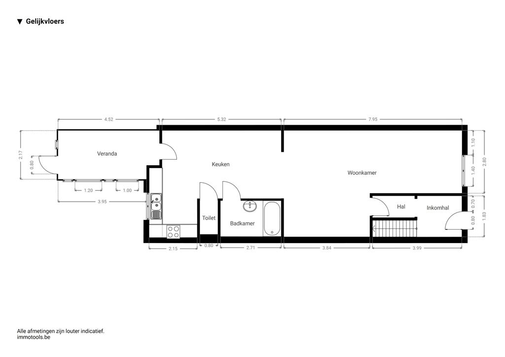
Strak renoveren & slim indelen (GLV)

Via de inkomhal kom je binnen in de ruime woonkamer die doorloopt tot in de open keuken achteraan. De leefruimte heeft tonnen potentieel om een warme, open en moderne zithoek te creëren.   Achteraan bevindt zich de open keuken met zicht op de tuin — een ideale plek voor een royale leefkeuken. Naast de keuken vind je de badkamer met bad en lavabo, én een apart toilet. Vanuit de achterbouw stap je zo de veranda in, die uitgeeft op de tuin.

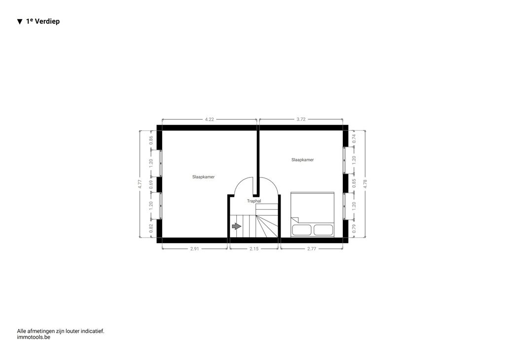
Vier slaapkamers & authentieke plankenvloeren (1V + 2V)

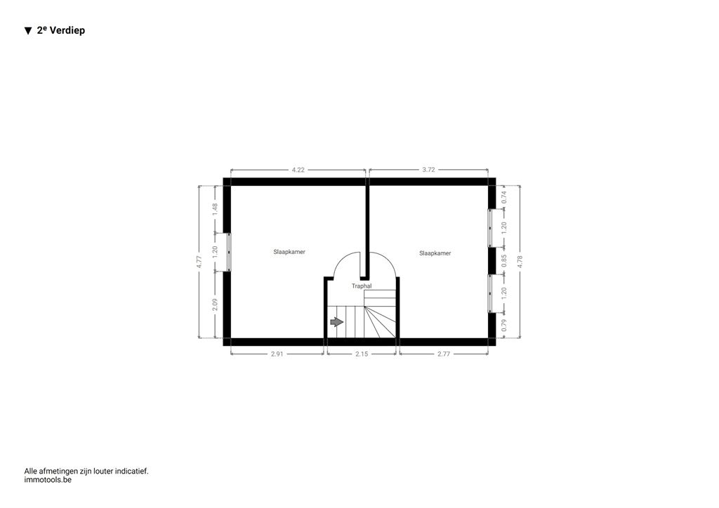
Op de eerste verdieping liggen twee grote slaapkamers op plankenvloer, beiden met aangename lichtinval. De ruimtes zijn ideaal om straks om te toveren tot master bedroom, kinderkamer, dressing of luxe home office.   Op de tweede verdieping vind je opnieuw twee ruime slaapkamers, eveneens op mooie houten vloeren.

Zonnige tuin van 110 m²

Achteraan ontdek je een diepe tuin van ca. 110 m² — een enorme troef in Deurne-Zuid. De tuin is zonnig, breed en biedt talloze mogelijkheden: speeltuin voor kinderen, moestuin, terras met lounge…

Deurne-Zuid: groen, rustig & super bereikbaar

Je woont hier in een rustige woonstraat, vlak bij het geliefde Boekenbergpark en op een paar minuten van het Rivierenhof. Buurtwinkels, scholen en openbaar vervoer liggen binnen handbereik. Dankzij de nabijheid van belangrijke invalswegen zit je bovendien zo in en uit de stad. De perfecte combinatie van rust en bereikbaarheid.

Wenst u meer informatie of een bezoek?

Stuur ons een bericht en u mag binnen de 24u een reactie van ons verwachten.

Troeven

  • 4 grote slaapkamers
  • Grote, zonnige tuin
  • Open keuken met zicht op de tuin
  • Leuke voortuin met toegang tot kelder
  • Renovatieverplichting van toepassing

Gebouw

Staat
Te renoveren
Aantal verdiepingen
2
Bebouwing
Gesloten
Bouwjaar
1930
Beschikbaarheid
Bij akte

Comfort

Keuken
Te renoveren
Kelder
Ja

Terrein

Bewoonbare oppervlakte
163 m2
Grondoppervlakte
239 m2
Living
33 m2
Tuin
110 m2

* afmetingen bij benadering

Energie

EPC UC
20251228-0003766940-RES-1
EPC
Renovatieplicht 493 kWh/m2
  • f
  • e
  • d
  • c
  • b
  • a
  • a+
Elektrische keuring
Ja, niet conform AREI
Verwarming
Individueel - CV op gas
Beglazing
Deels dubbel, deels enkel
Dak
Plat dak

Stedenbouwkundige informatie

Stedenbouwkundige bestemming
Woongebied
Bouwvergunning
Niet van toepassing
Verkavelingsvergunning
Niet van toepassing
Voorkooprecht
Nee
Dagvaarding en herstelvordering
Geen rechterlijke herstelmaatregel of bestuurlijke maatregel opgelegd
Stedenbouwkundig uittreksel uitgegeven
Op 08/12/2025, door de gemeente antwerpen, met referentie VIP-00679487
Overstromingsgevoelig gebied
Nee
G-score
Klasse A
P-score
Klasse A
Bodemattest
Aanwezig

Financieel

Prijs
€ 295.000
Kadastraal inkomen
€ 567
Huidige gemeensch. kosten p/m
€ 0

Registratiekosten en kostprijs berekenen voor

  • 12%
  • 2%
Registratierechten*
€ 35.400
Honorarium notaris
€ 2.475
Honorarium notaris (incl. BTW)
€ 2.995
Totale kosten
€ 38.395
Totale kostprijs
€ 333.395
Registratierechten*
€ 5.900
Honorarium notaris
€ 2.475
Honorarium notaris (incl. BTW)
€ 2.995
Totale kosten
€ 8.895
Totale kostprijs
€ 303.895

Simulatie leningkost

Gemiddelde maandelijkse afbetaling
Projectprijs
295.000
Eigen geld
25.000
Rente
2%
Looptijd
20 jaar

*Uitleg financiële voorstelling:

Dit is een richtinggevende schatting van de bijkomende kosten van je aankoop. Deze is afhankelijk van variabele factoren, waaronder volgende voorbeelden;

  • Zal de aankoop al dan niet jouw hoofdverblijfplaats worden?
  • Koop je aan als een natuurlijk persoon of als vennootschap?

Voor een uitgebreide berekening van de registratie-rechten en erelonen, kijk op berekeningsmodule - notaris.be. Andere kosten bij je notaris staan ook uitgelegd op notaris.be

*Registratierechten; 

  • De standaard registratierechten bij aankoop van een woning bedragen 12% van de aankoopprijs.
  • Registratirechten bij aankoop van de enige eigen woning bedragen 2% van de aankoopprijs. 

Er bestaat een bijkomende vermindering, bij aankoop van een woning onder € 220.000,00 of onder € 240.000,00 als deze in een centrumstad of de Vlaamse Rand gelegen is.

Dit alles onder voorbehoud van de voorwaarden die je kan terugvinden op vlaanderen.be

* Alle afmetingen op onze website zijn indicatief. 

Indeling

Gelijkvloers
Inkomhal
6,5 m2
Woonkamer
33,0 m2
Keuken
23,0 m2
Badkamer 1
5,0 m2
Toilet
1,0 m2
Eerste verdieping
Traphal
6,0 m2
Slaapkamer 1
15,5 m2
Slaapkamer 2
20,0 m2
Tweede verdieping
Traphal
5,0 m2
Slaapkamer 3
17,5 m2
Slaapkamer 4
20,0 m2
Kelder(-1)
Kelder
23,0 m2
Tuinniveau
Tuin
130,0 m2

* afmetingen bij benadering

Wenst u meer informatie of een bezoek?

Stuur ons een bericht en u mag binnen de 24u een reactie van ons verwachten.

Vergelijkbare panden

Optie
DEURNE
168 m2
4
70 m2
C
Optie
DEURNE
145 m2
3
60 m2
A
Optie
DEURNE
116 m2
3
16 m2
D

Uw favorieten

Hou me op de hoogte