Multifunctioneel opbrengsteigendom met magazijn in Deurne-Zuid

€ 655.000
Sint-Rochusstraat 33, 2100 DEURNE
Ref. 15507
5
4
5
780 m2
75 m2

Op zoek naar een pand met massa’s ruimte én mogelijkheden? Dit veelzijdige gebouw combineert een gigantisch magazijn met meerdere woonentiteiten op een sterke locatie vlakbij het Rivierenhof. Ideaal voor wie wonen en werken wil combineren, of voor investeerders die mikken op rendement.

Wonen, werken of investeren

Volgens de laatst vergunde plannen gaat het om twee appartementen, een winkelruimte en een magazijn. Vandaag wordt het gelijkvloers deels gebruikt als appartement (verhuurd aan €1000/maand) en is er een ruim magazijn aanwezig, bereikbaar via een grote garagepoort.

Het gebouw ademt geschiedenis – ooit deed het dienst als vleeswarenfabriek – en dat voel je aan de indrukwekkende volumes en robuuste structuur. Het magazijn strekt zich uit over een enorme oppervlakte, met verschillende werkplaatsen, open ruimtes en opslagzones. Perfect voor zelfstandigen, opslag, ateliers of herontwikkeling.

Naast het magazijn vind je op het gelijkvloers onder meer een bureel, keuken, sanitaire voorzieningen en meerdere polyvalente ruimtes.

Appartementen met potentieel

Op de eerste verdieping zijn er twee aparte entiteiten:

Aan de achterzijde bevindt zich een atelier met aansluitend een appartement, momenteel verhuurd aan €500/maand.

Aan de voorzijde ligt een ruim appartement van ca. 100 m² met groot terras. Deze unit staat leeg en dient nog verder afgewerkt te worden – een mooie opportuniteit om naar eigen smaak te finaliseren.

Op de tweede verdieping bevindt zich een instapklaar appartement van ca. 70 m², met leefruimte, keuken, slaapkamer en badkamer. Ideaal als extra verhuureenheid of voor eigen bewoning.

Groots magazijn met eindeloze mogelijkheden

Het absolute paradepaardje is zonder twijfel het enorme magazijn op het gelijkvloers. De hoge plafonds, brede overspanningen en grote garagepoort maken laden en lossen bijzonder eenvoudig. Dit volume leent zich perfect voor stockage, productie, creatieve invulling of een combinatie van wonen en werken onder één dak.

Dankzij de solide structuur en de oppervlakte biedt dit pand tal van herontwikkelingsmogelijkheden, steeds binnen de geldende stedenbouwkundige voorschriften.

Groen en centraal in Deurne-Zuid

Je zit hier op een goede locatie in Deurne-Zuid, vlakbij het Rivierenhof. Winkels, openbaar vervoer en invalswegen bevinden zich op korte afstand. Een strategische ligging voor zowel residentieel als professioneel gebruik.

De combinatie van bereikbaarheid, ruimte en indeling maakt dit pand bijzonder interessant voor investeerders, ondernemers of grote gezinnen die veel plaats zoeken.

Wenst u meer informatie of een bezoek?

Stuur ons een bericht en u mag binnen de 24u een reactie van ons verwachten.

Troeven

  • multifunctioneel gebouw
  • combinatie wonen en werken mogelijk
  • dak geïsoleerd
  • topligging in Deurne-Zuid
  • vlakbij Rivierenhof

Gebouw

Staat
Direct bewoonbaar
Aantal verdiepingen
2
Bebouwing
Gesloten
Bouwjaar
1947
Beschikbaarheid
Overeen te komen

Comfort

Keuken
Geïnstalleerd
Aansluiting gas
Ja
Kelder
Ja

Terrein

Bewoonbare oppervlakte
780 m2
Grondoppervlakte
520 m2
Terras
75 m2

* afmetingen bij benadering

Energie

EPC UC
20200930-0002321716-RES-1
EPC
232 kWh/m2
  • f
  • e
  • d
  • c
  • b
  • a
  • a+
Elektrische keuring
Info aangevraagd
Verwarming
Individueel - CV op gas
Beglazing
Deels dubbel, deels enkel
Dak
Plat dak

Stedenbouwkundige informatie

Stedenbouwkundige bestemming
Woongebied
Bouwvergunning
Niet van toepassing
Verkavelingsvergunning
Niet van toepassing
Voorkooprecht
Nee
Dagvaarding en herstelvordering
Geen rechterlijke herstelmaatregel of bestuurlijke maatregel opgelegd
Stedenbouwkundig uittreksel uitgegeven
Op 21/01/2026, door de gemeente Antwerpen, met referentie VIP-00729483
Overstromingsgevoelig gebied
Nee
G-score
Klasse B
P-score
Klasse B
Bodemattest
Aanwezig

Financieel

Prijs
€ 655.000
Kadastraal inkomen
€ 3.236
Huidige gemeensch. kosten p/m
€ 0

Registratiekosten en kostprijs berekenen voor

  • 12%
  • 2%
Registratierechten*
€ 78.600
Honorarium notaris
€ 2.680
Honorarium notaris (incl. BTW)
€ 3.243
Totale kosten
€ 81.843
Totale kostprijs
€ 736.843
Registratierechten*
€ 13.100
Honorarium notaris
€ 2.680
Honorarium notaris (incl. BTW)
€ 3.243
Totale kosten
€ 16.343
Totale kostprijs
€ 671.343

Simulatie leningkost

Gemiddelde maandelijkse afbetaling
Projectprijs
655.000
Eigen geld
25.000
Rente
2%
Looptijd
20 jaar

*Uitleg financiële voorstelling:

Dit is een richtinggevende schatting van de bijkomende kosten van je aankoop. Deze is afhankelijk van variabele factoren, waaronder volgende voorbeelden;

  • Zal de aankoop al dan niet jouw hoofdverblijfplaats worden?
  • Koop je aan als een natuurlijk persoon of als vennootschap?

Voor een uitgebreide berekening van de registratie-rechten en erelonen, kijk op berekeningsmodule - notaris.be. Andere kosten bij je notaris staan ook uitgelegd op notaris.be

*Registratierechten; 

  • De standaard registratierechten bij aankoop van een woning bedragen 12% van de aankoopprijs.
  • Registratirechten bij aankoop van de enige eigen woning bedragen 2% van de aankoopprijs. 

Er bestaat een bijkomende vermindering, bij aankoop van een woning onder € 220.000,00 of onder € 240.000,00 als deze in een centrumstad of de Vlaamse Rand gelegen is.

Dit alles onder voorbehoud van de voorwaarden die je kan terugvinden op vlaanderen.be

* Alle afmetingen op onze website zijn indicatief. 

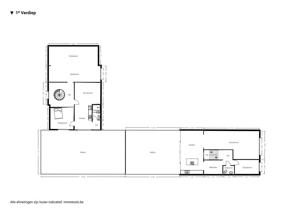
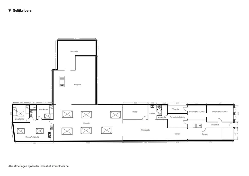
Indeling

Gelijkvloers
Magazijn/garage
345,0 m2
Appartement 1
70,0 m2
Inrit naar garage
36,0 m2
Eerste verdieping
Atelier
94,0 m2
Appartement 2
50,0 m2
Appartement 3
100,0 m2
Tweede verdieping
Appartement 4
70,0 m2
Kelder(-1)
Kelder
60,0 m2
Eerste verdieping
Terras 1
75,0 m2

* afmetingen bij benadering

Wenst u meer informatie of een bezoek?

Stuur ons een bericht en u mag binnen de 24u een reactie van ons verwachten.

Uw favorieten

Hou me op de hoogte