Ruime handelsruimte met hoge plafonds, EPC B en grote visibiliteit in bruisende buurt nabij Sint-Jansplein

€ 1.450
Van Maerlantstraat 7, 2060 ANTWERPEN
Ref. 15456
110 m2

Op zoek naar een ruime handelszaak met veel passage? Deze gelijkvloerse commerciële ruimte van ca. 110 m² combineert een grote open ruimte, hoge plafonds en een topligging vlakbij het Sint-Jansplein, het Centraal Station en de Rooseveltplaats. Ideaal voor een dagzaak die gezien mag worden!

Ruimte & mogelijkheden

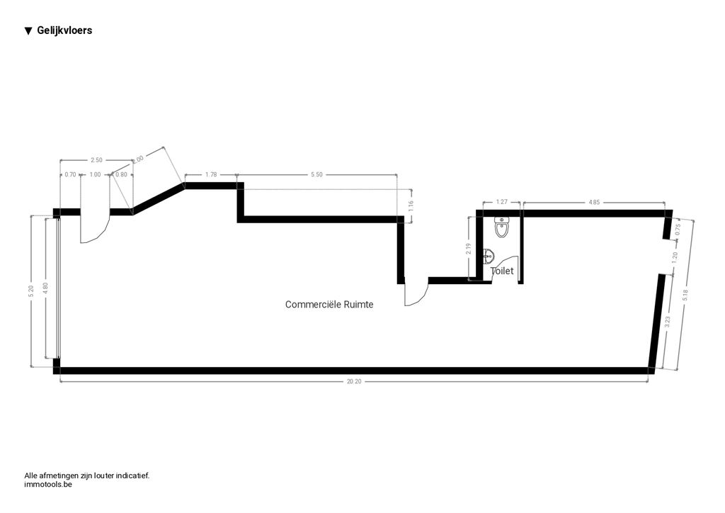
Deze handelsruimte bevindt zich op het gelijkvloers van een kleinschalig gebouw met een charmante art-deco gevel. Vooraan geniet je van een groot etalageraam, wat zorgt voor maximale visibiliteit en een sterke commerciële uitstraling. Dankzij de ligging in een levendige straat met veel passage springt jouw zaak hier meteen in het oog.

De ruimte zelf is bijzonder ruim en open, afgewerkt met een lichte laminaatvloer en hoge plafonds van maar liefst 3,3 meter. Dit geeft niet alleen een aangenaam ruimtelijk gevoel, maar biedt ook praktische voordelen voor inrichting, stockage of creatieve invulling. Achteraan is er voldoende plaats voorzien om eventueel een keuken of werkruimte te installeren, volledig naar eigen noden en concept.

Via aparte deuren heb je toegang tot zowel de algemene delen als een afzonderlijke toiletruimte. Deze laatste is volledig betegeld en uitgerust met een toilet en wastafel — praktisch en netjes afgewerkt.

Levendige buurt met alles binnen handbereik

Gelegen in een bruisende wijk in Antwerpen Noord, zit je hier op wandelafstand van het Sint-Jansplein, een hotspot met tal van eetgelegenheden en internationale  handelszaken. Ook de Paardenmarkt en het hippe Eilandje liggen vlakbij.

Mobiliteit is hier een grote troef: met het Centraal Station en de Rooseveltplaats op korte afstand heb je toegang tot een uitgebreid netwerk van trams en bussen. Ideaal voor zowel klanten als medewerkers.

Interesse om te huren?

Stel u als kandidaat als huurder via het formulier. Wij zullen u terug contacteren.
Bezoek of info aanvragen

Troeven

  • EPC B
  • ruime handelsruimte (ca. 110 m²)
  • hoge plafonds (3,3 m)
  • groot etalageraam met veel visibiliteit
  • veel passage
  • aparte nutsvoorzieningen (gas, water, elektriciteit)
  • lage algemene kosten

Gebouw

Staat
Goede staat
Aantal verdiepingen
4
Bebouwing
Gesloten
Beschikbaarheid
Bij akte

Comfort

Keuken
Niet meegedeeld
Aansluiting gas
Ja

Terrein

Bewoonbare oppervlakte
110 m2
Grondoppervlakte
145 m2
Winkel
108 m2

* afmetingen bij benadering

Energie

EPC UC
20260409-0003838203-KNR-1
EPC
Info aangevraagd
  • f
  • e
  • d
  • c
  • b
  • a
  • a+
Elektrische keuring
Ja, niet conform AREI
Verwarming
Individueel - CV op gas
Beglazing
Dubbel
Dak
Niet meegedeeld

Stedenbouwkundige informatie

Overstromingsgevoelig gebied
Nee

Financieel

Prijs
€ 1.450
Huidige gemeensch. kosten p/m
€ 60

elektriciteit GD, lift, blokpolis

Indeling

Gelijkvloers
Handelsruimte
108,0 m2
Toilet
2,5 m2

* afmetingen bij benadering

Wenst u meer informatie of een bezoek?

Stuur ons een bericht en u mag binnen de 24u een reactie van ons verwachten.

Bezoek of info aanvragen

Uw favorieten

Hou me op de hoogte