Instapklaar appartement met 2 slaapkamers en zuidterras nabij Te Boelaarpark

€ 239.000
Berchemlei 25, 2140 BORGERHOUT
Ref. 15289
2
1
80 m2
5 m2

Rustig wonen in bruisend Borgerhout? Check. Dit verzorgde appartement op de tweede (bovenste) verdieping van een kleinschalig gebouw combineert licht, comfort en een topligging vlakbij het Te Boelaerpark en Boekenbergpark. Met een ruime leefruimte, vernieuwde keuken (2023) en een zonnig terras is dit een plek waar je meteen thuiskomt.

Leven in het licht

Via de inkomhal met vestiairemogelijkheid kom je binnen in de ruime leefruimte. Dankzij de kamerbrede ramen baadt deze ruimte in het daglicht en voelt alles meteen open en aangenaam aan. De laminaatvloer, sierlijsten en logische vorm zorgen voor een warme, huiselijke sfeer. Hier geniet je van gezellige avonden en lange diners met vrienden of familie.

Koken & genieten van de zon

De keuken is strak en tijdloos, met witte greeploze kasten en een donker werkblad. Je beschikt over alle comfort: gasfornuis, oven, dampkap, plek voor een vaatwasser en inox spoelbak. Extra werkruimte maakt het geheel praktisch én aangenaam.

Via de schuifdeur stap je zo het zuidgerichte terras van ca. 5 m² op. Een rustige buitenplek met zicht op de tuinen, waar je in alle privacy geniet van de zon — perfect voor je ochtendkoffie of een aperitief na het werk.

Rust achteraan

De badkamer is functioneel ingericht met een ligbad en douchescherm, een lavabomeubel met grote spiegel, toilet en aansluiting voor wasmachine. De lichtkoepel zorgt hier voor een aangename, natuurlijke lichtinval.

Achteraan liggen de twee slaapkamers, beide op laminaatvloer en heerlijk rustig. De ruime master bedroom kijkt uit op het groen en biedt plaats voor een groot bed en kasten. De tweede kamer is ideaal als kinderkamer, bureau of dressing — flexibel in te richten volgens jouw noden.

Groen, rustig en toch centraal

Je woont hier in een van de meest gegeerde wijken van Borgerhout, net buiten de Singel en op wandelafstand van het Te Boelaerpark en het Boekenbergpark. Supermarkten, scholen, gezellige cafés en openbaar vervoer liggen allemaal vlakbij. Met een velo-station om de hoek en de Ring op enkele minuten, ben je bovendien snel onderweg, waar je ook heen moet.

Wenst u meer informatie of een bezoek?

Stuur ons een bericht en u mag binnen de 24u een reactie van ons verwachten.

Troeven

  • Instapklaar
  • kleinschalig gebouw (3 units)
  • bovenste verdieping
  • vernieuwde keuken (2023)
  • zuidgericht terras
  • veel licht
  • elektriciteit conform
  • 2 kelderbergingen
  • rustige ligging
  • Te Boelaerpark op wandelafstand

Gebouw

Staat
Direct bewoonbaar
Aantal verdiepingen
2
Bebouwing
Gesloten
Beschikbaarheid
Huurovereenkomst te respecteren

Comfort

Keuken
Alle comfort
Kelder
Ja

Terrein

Bewoonbare oppervlakte
80 m2
Grondoppervlakte
161 m2
Living
30 m2
Terras
5 m2
Breedte grond
6 m
Diepte
26 m
Gevelbreedte
6 m

* afmetingen bij benadering

Energie

EPC UC
20260330-0003836099-RES-2
EPC
259 kWh/m2
  • f
  • e
  • d
  • c
  • b
  • a
  • a+
Elektrische keuring
Ja, conform AREI
Verwarming
Individueel - CV op gas
Beglazing
Dubbel
Dak
Plat dak

Stedenbouwkundige informatie

Stedenbouwkundige bestemming
Woongebied
Bouwvergunning
Niet van toepassing
Verkavelingsvergunning
Niet van toepassing
Voorkooprecht
Nee
Dagvaarding en herstelvordering
Geen rechterlijke herstelmaatregel of bestuurlijke maatregel opgelegd
Stedenbouwkundig uittreksel uitgegeven
Op 27/03/2026, door de gemeente Antwerpen, met referentie VIP-00847596
Overstromingsgevoelig gebied
Nee
G-score
Klasse A
P-score
Klasse A

Financieel

Prijs
€ 239.000
Kadastraal inkomen
€ 528
Huidige gemeensch. kosten p/m
€ 120

€ 65: syndicus, blokpolis, elektriciteit AD, klein onderhoud € 55: Provisie privatief water verbruik

Registratiekosten en kostprijs berekenen voor

  • 12%
  • 2%
Registratierechten*
€ 28.680
Honorarium notaris
€ 2.386
Honorarium notaris (incl. BTW)
€ 2.887
Totale kosten
€ 31.567
Totale kostprijs
€ 270.567
Registratierechten*
€ 2.913
Honorarium notaris
€ 2.386
Honorarium notaris (incl. BTW)
€ 2.887
Totale kosten
€ 5.800
Totale kostprijs
€ 244.800

Simulatie leningkost

Gemiddelde maandelijkse afbetaling
Projectprijs
239.000
Eigen geld
25.000
Rente
2%
Looptijd
20 jaar

*Uitleg financiële voorstelling:

Dit is een richtinggevende schatting van de bijkomende kosten van je aankoop. Deze is afhankelijk van variabele factoren, waaronder volgende voorbeelden;

  • Zal de aankoop al dan niet jouw hoofdverblijfplaats worden?
  • Koop je aan als een natuurlijk persoon of als vennootschap?

Voor een uitgebreide berekening van de registratie-rechten en erelonen, kijk op berekeningsmodule - notaris.be. Andere kosten bij je notaris staan ook uitgelegd op notaris.be

*Registratierechten; 

  • De standaard registratierechten bij aankoop van een woning bedragen 12% van de aankoopprijs.
  • Registratirechten bij aankoop van de enige eigen woning bedragen 2% van de aankoopprijs. 

Er bestaat een bijkomende vermindering, bij aankoop van een woning onder € 220.000,00 of onder € 240.000,00 als deze in een centrumstad of de Vlaamse Rand gelegen is.

Dit alles onder voorbehoud van de voorwaarden die je kan terugvinden op vlaanderen.be

* Alle afmetingen op onze website zijn indicatief. 

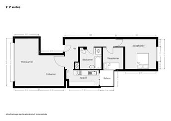
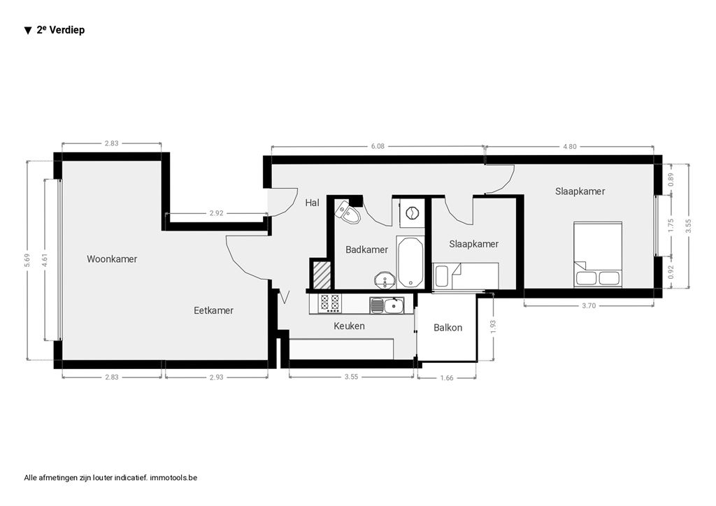
Indeling

Tweede verdieping
Hal
6,5 m2
Leefruimte
30,0 m2
Keuken
8,0 m2
Nachthal
4,0 m2
Badkamer 1
7,0 m2
Slaapkamer 1
7,0 m2
Slaapkamer 2
16,0 m2
Terras
5,0 m2

* afmetingen bij benadering

Wenst u meer informatie of een bezoek?

Stuur ons een bericht en u mag binnen de 24u een reactie van ons verwachten.

Vergelijkbare panden

Nieuw
BORGERHOUT
70 m2
1
87 m2
B
Nieuw
BORGERHOUT
70 m2
2
4 m2
A
Nieuw
BORGERHOUT
66 m2
1
57 m2
B

Uw favorieten

Hou me op de hoogte