Ruime bel-etage met EPC B, garage, oprit en diepe tuin in een residentiële wijk

Optie
€ 320.000
Den Haaglaan 122, 2660 HOBOKEN
Ref. 15194
3
1
1
151 m2
200 m2

 

Op zoek naar een ruime woning met enorm veel potentieel, een grote tuin én een praktische indeling? Dan zit je hier goed. Deze op te frissen bel-etage met gerenoveerde badkamer in een rustige straat in Hoboken combineert licht, ruimte en comfort met een uitstekende bereikbaarheid en alle voorzieningen vlakbij.

 

Binnenkomen met ruimte en mogelijkheden

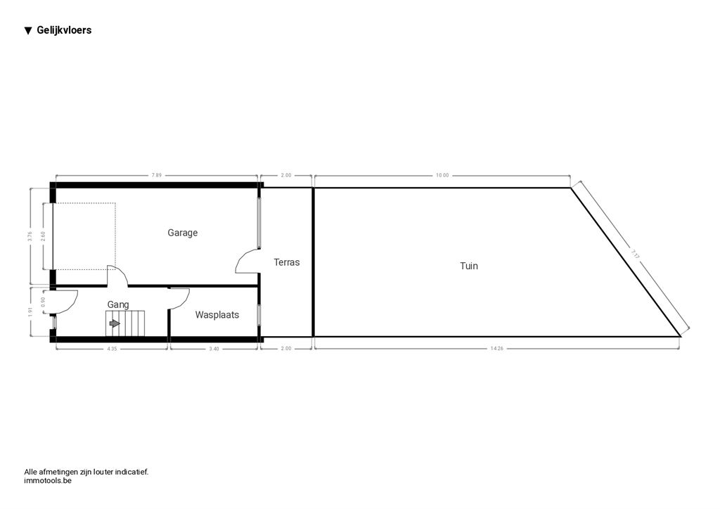
Deze verzorgde woning verwelkomt je via de inkomhal, waar je links toegang hebt tot de bijzonder ruime garage. Deze is vlot bereikbaar via de oprit en de sectionale poort. Rechtdoor bevindt zich de praktische berging/wasplaats, netjes uit het zicht. Deze ruimte is uitgerust met aansluitingen voor een was- en droogmachine en geeft rechtstreeks uit op de tuin. Achteraan geniet je van een diepe tuin met eerst een terras en vervolgens een groot groengedeelte – ideaal voor gezinnen, tuinliefhebbers of wie gewoon graag buiten vertoeft.

 

Licht en leefcomfort centraal

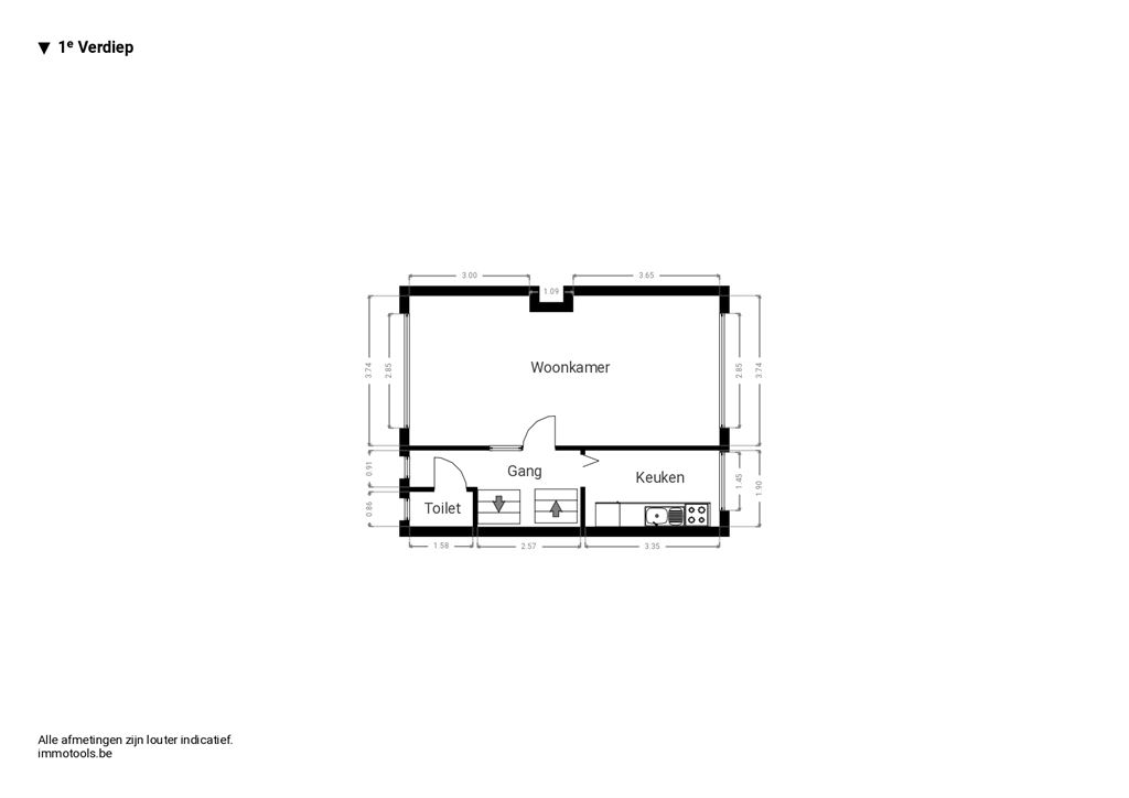
Op de eerste verdieping kom je op de overloop met apart toilet en toegang tot de leefruimte. De woonkamer is opvallend lichtrijk dankzij de grote ramen voor- en achteraan en biedt meer dan voldoende plaats voor een salon en eetruimte.Aansluitend vind je de keuken, praktisch ingericht en voorzien van alle basiscomfort. Dankzij het raam geniet je hier van natuurlijk licht en zicht op de tuin.

 

3 volwaardige slaapkamers & vernieuwde badkamer

Op de tweede verdieping bevinden zich drie volwaardige slaapkamers, allemaal met veel lichtinval dankzij de grote ramen. De kamers zijn logisch ingedeeld volgens het plan, met twee aan de achterzijde en één aan de voorzijde.

De badkamer is helemaal gerenoveerd en is uitgerust met een inloopdouche en een modern lavabomeubel – een mooie plus in deze woning.

 

Rustig wonen met alles dichtbij

Gelegen in de Den Haaglaan woon je in een rustige, residentiële straat in Hoboken, op wandelafstand van het groene Sorghvliedtpark. Ideaal voor ontspanning, sport of een wandeling. In de buurt vind je winkels, scholen en het commerciële hart rond de Kioskplaats.

Ook qua mobiliteit zit je hier goed: tram en bus zijn vlakbij en via de A12 en andere invalswegen ben je snel in Antwerpen of richting Brussel.

 

 

Wenst u meer informatie of een bezoek?

Stuur ons een bericht en u mag binnen de 24u een reactie van ons verwachten.

Troeven

  • ruime garage
  • oprit
  • 3 slaapkamers
  • EPC B
  • betonstructuur
  • asbestveilig
  • dak geïsoleerd
  • enorm ruime tuin
  • praktische indeling
  • rustige, residentiële ligging
  • condensatieketel
  • dubbele HR beglazing

Gebouw

Staat
Op te frissen
Aantal verdiepingen
2
Bebouwing
Gesloten
Bouwjaar
1973
Beschikbaarheid
Overeen te komen

Comfort

Keuken
Gedeeltelijk Geïnstalleerd
Aansluiting gas
Ja

Terrein

Bewoonbare oppervlakte
151 m2
Grondoppervlakte
267 m2
Living
36 m2
Tuin
200 m2

* afmetingen bij benadering

Energie

EPC UC
20260311-003820754-RES-1
EPC
170 kWh/m2
  • f
  • e
  • d
  • c
  • b
  • a
  • a+
Elektrische keuring
Ja, niet conform AREI
Verwarming
Individueel - CV op gas
Beglazing
Dubbel
Dak
Plat dak

Stedenbouwkundige informatie

Stedenbouwkundige bestemming
Woongebied
Bouwvergunning
Ja
Verkavelingsvergunning
Info aangevraagd
Voorkooprecht
Nee
Dagvaarding en herstelvordering
Geen rechterlijke herstelmaatregel of bestuurlijke maatregel opgelegd
Stedenbouwkundig uittreksel uitgegeven
Op 13/02/2026, door de gemeente Antwerpen, met referentie VIP-00772594
Overstromingsgevoelig gebied
Nee
G-score
Klasse A
P-score
Klasse A
Bodemattest
Aanwezig

Financieel

Prijs
€ 320.000
Kadastraal inkomen
€ 830
Huidige gemeensch. kosten p/m
€ 0

Registratiekosten en kostprijs berekenen voor

  • 12%
  • 2%
Registratierechten*
€ 38.400
Honorarium notaris
€ 2.489
Honorarium notaris (incl. BTW)
€ 3.012
Totale kosten
€ 41.412
Totale kostprijs
€ 361.412
Registratierechten*
€ 6.400
Honorarium notaris
€ 2.489
Honorarium notaris (incl. BTW)
€ 3.012
Totale kosten
€ 9.412
Totale kostprijs
€ 329.412

Simulatie leningkost

Gemiddelde maandelijkse afbetaling
Projectprijs
320.000
Eigen geld
25.000
Rente
2%
Looptijd
20 jaar

*Uitleg financiële voorstelling:

Dit is een richtinggevende schatting van de bijkomende kosten van je aankoop. Deze is afhankelijk van variabele factoren, waaronder volgende voorbeelden;

  • Zal de aankoop al dan niet jouw hoofdverblijfplaats worden?
  • Koop je aan als een natuurlijk persoon of als vennootschap?

Voor een uitgebreide berekening van de registratie-rechten en erelonen, kijk op berekeningsmodule - notaris.be. Andere kosten bij je notaris staan ook uitgelegd op notaris.be

*Registratierechten; 

  • De standaard registratierechten bij aankoop van een woning bedragen 12% van de aankoopprijs.
  • Registratirechten bij aankoop van de enige eigen woning bedragen 2% van de aankoopprijs. 

Er bestaat een bijkomende vermindering, bij aankoop van een woning onder € 220.000,00 of onder € 240.000,00 als deze in een centrumstad of de Vlaamse Rand gelegen is.

Dit alles onder voorbehoud van de voorwaarden die je kan terugvinden op vlaanderen.be

* Alle afmetingen op onze website zijn indicatief. 

Indeling

Gelijkvloers
Garage
36,0 m2
Inkomhal
10,0 m2
Berging
7,0 m2
Eerste verdieping
Woonkamer
36,0 m2
Overloop
7,0 m2
Toilet 1
1,5 m2
Keuken
7,5 m2
Tweede verdieping
Badkamer 1
4,0 m2
Slaapkamer 1
21,0 m2
Slaapkamer 2
13,5 m2
Slaapkamer 3
7,5 m2
Gelijkvloers
Oprit
31,5 m2
Tuin
200,0 m2

* afmetingen bij benadering

Wenst u meer informatie of een bezoek?

Stuur ons een bericht en u mag binnen de 24u een reactie van ons verwachten.

Uw favorieten

Hou me op de hoogte