Te renoveren open bebouwing met groen uitzicht en tal van mogelijkheden

€ 399.000
Spoorweglei 5, 2860 SINT-KATELIJNE-WAVER
Ref. 15165
3
1
165 m2
851 m2

Op zoek naar een woning met potentieel én een zee van ruimte rondom?  Aan de Spoorweglei 5 in Sint-Katelijne-Waver vind je deze open bebouwing met drie slaapkamers, een ruime garageberging en een groen perceel van meer dan 996m². Dankzij de centrale ligging nabij het station en de fietsostrade geniet je hier van rust, natuur en een vlotte bereikbaarheid tegelijk.

Ruimte, licht en authenticiteit

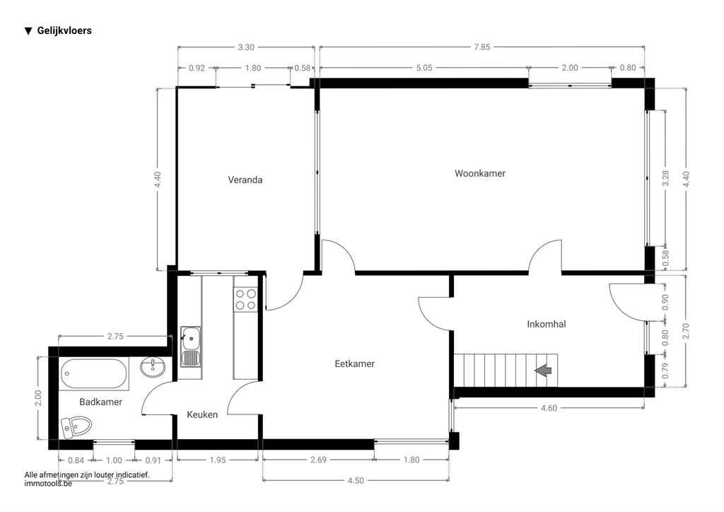
Via de inkomhal met tegelvloer en houten trap kom je in de ruime living van 37 m², waar veel licht binnenvalt via de grote ramen. De authentieke schouw herinnert aan het karakter van de woning. De aansluitende eetkamer (19 m²) vormt het hart van het huis en verbindt de leefruimte met de keuken en veranda.  De keuken kijkt uit op de veranda en biedt een mooie basis om te moderniseren. Verder vind je beneden een badkamer met ligbad en toilet, en een veranda met schuifdeur naar de tuin met landelijk uitzicht.  

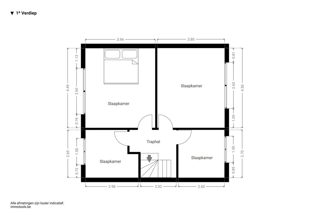
Drie slaapkamers & berging

Op de eerste verdieping liggen drie slaapkamers van respectievelijk ca. 7 m², 15 m² en 18 m².   Achteraan bevindt zich nog een praktische berging – ideaal als dressing of extra opslagruimte.

Groen rondom & rust verzekerd

Met een tuin van 851 m², inclusief weiland en landelijk uitzicht, woon je hier in een oase van rust. Een ruim tuinhuis biedt extra berging, en de grote oprit zorgt voor meerdere parkeerplaatsen. De ligging is top: tussen Mechelen, Lier en Antwerpen, op wandelafstand van het station van Sint-Katelijne-Waver. Winkels, scholen en horeca liggen vlakbij, terwijl je geniet van een landelijke, groene omgeving.

Wenst u meer informatie of een bezoek?

Stuur ons een bericht en u mag binnen de 24u een reactie van ons verwachten.

Troeven

  • centrale ligging langs fietsostrade
  • ruime groene percelen
  • grote garageberging
  • veel lichtinval
  • landelijke omgeving
  • wandelafstand van station
  • nabij winkels, scholen en horeca
  • vlotte verbinding Mechelen–Lier–Antwerpen

Gebouw

Staat
Op te frissen
Aantal verdiepingen
2
Bebouwing
Open
Bouwjaar
1965
Beschikbaarheid
Huurovereenkomst te respecteren

Comfort

Keuken
Geïnstalleerd

Terrein

Bewoonbare oppervlakte
165 m2
Grondoppervlakte
996 m2
Living
37 m2
Tuin
851 m2

* afmetingen bij benadering

Energie

EPC UC
20251229-0003767607-RES-2
EPC
Renovatieplicht 1049 kWh/m2
  • f
  • e
  • d
  • c
  • b
  • a
  • a+
Elektrische keuring
Ja, niet conform AREI
Verwarming
Individueel - CV op stookolie
Beglazing
Dubbel
Dak
Vlinderdak

Stedenbouwkundige informatie

Stedenbouwkundige bestemming
Agrarisch gebied
Bouwvergunning
Info aangevraagd
Verkavelingsvergunning
Niet van toepassing
Voorkooprecht
Nee
Dagvaarding en herstelvordering
Geen rechterlijke herstelmaatregel of bestuurlijke maatregel opgelegd
Overstromingsgevoelig gebied
Nee
G-score
Klasse A
P-score
Klasse A

Financieel

Prijs
€ 399.000
Huidige gemeensch. kosten p/m
€ 0

Registratiekosten en kostprijs berekenen voor

  • 12%
  • 2%
Registratierechten*
€ 47.880
Honorarium notaris
€ 2.563
Honorarium notaris (incl. BTW)
€ 3.101
Totale kosten
€ 50.981
Totale kostprijs
€ 449.981
Registratierechten*
€ 7.980
Honorarium notaris
€ 2.563
Honorarium notaris (incl. BTW)
€ 3.101
Totale kosten
€ 11.081
Totale kostprijs
€ 410.081

Simulatie leningkost

Gemiddelde maandelijkse afbetaling
Projectprijs
399.000
Eigen geld
25.000
Rente
2%
Looptijd
20 jaar

*Uitleg financiële voorstelling:

Dit is een richtinggevende schatting van de bijkomende kosten van je aankoop. Deze is afhankelijk van variabele factoren, waaronder volgende voorbeelden;

  • Zal de aankoop al dan niet jouw hoofdverblijfplaats worden?
  • Koop je aan als een natuurlijk persoon of als vennootschap?

Voor een uitgebreide berekening van de registratie-rechten en erelonen, kijk op berekeningsmodule - notaris.be. Andere kosten bij je notaris staan ook uitgelegd op notaris.be

*Registratierechten; 

  • De standaard registratierechten bij aankoop van een woning bedragen 12% van de aankoopprijs.
  • Registratirechten bij aankoop van de enige eigen woning bedragen 2% van de aankoopprijs. 

Er bestaat een bijkomende vermindering, bij aankoop van een woning onder € 220.000,00 of onder € 240.000,00 als deze in een centrumstad of de Vlaamse Rand gelegen is.

Dit alles onder voorbehoud van de voorwaarden die je kan terugvinden op vlaanderen.be

* Alle afmetingen op onze website zijn indicatief. 

Indeling

Gelijkvloers
Inkomhal
12,0 m2
Woonkamer
37,0 m2
Eetkamer
19,0 m2
Keuken
8,0 m2
Badkamer 1
6,0 m2
Veranda
13,0 m2
Eerste verdieping
Nachthal
5,0 m2
Slaapkamer 1
7,0 m2
Slaapkamer 2
18,0 m2
Slaapkamer 3
15,0 m2
Berging
4,0 m2

* afmetingen bij benadering

Wenst u meer informatie of een bezoek?

Stuur ons een bericht en u mag binnen de 24u een reactie van ons verwachten.

Vergelijkbare panden

Optie
SINT-KATELIJNE-WAVER
317 m2
2
F

Uw favorieten

Hou me op de hoogte