Exclusief penthouse (ca106m²) met high-end afwerking, twee terrassen aan den Botaniek

In de kijker
€ 995.000
Henri Van Heurckstraat 23, 2000 ANTWERPEN
Ref. 14811
2
1
2
106 m2
72 m2

Luxe, rust en ruimte midden in het bruisende centrum.  Dit sublieme penthouse ligt in de prestigieuze Henri Van Heurckstraat, pal tussen de Graanmarkt, het Theaterplein en het stijlvolle Botanic Sanctuary. Je wandelt zo naar de Schuttershofstraat, Mechelsplein en de leukste restaurants van de stad. Mét twee riante terrassen, hoogwaardige materialen, veel privacy, domotica en de mogelijkheid tot aankoop van twee staanplaatsen met laadpaal.

Stijlvol & comfortabel

Je betreedt het penthouse via de modern afgewerkte veiligheidsdeur. De inkomhal met vestiaire en gastentoilet leidt je naar een lichte leefruimte met gashaard en epoxyvloer. Grote harmonicadeuren verbinden de leefruimte met het enorme terras achter en vooraan. De open keuken is uitgerust met onder andere een wijnklimaatkast, stoomoven, inductiekookplaat en extra koelkast, afgewerkt met notelaarhouten kasten en een strak werkblad.

Rust & privacy met luxegevoel

De mastersuite heeft kamerhoge ingemaakte kasten en directe toegang tot het terras. Ensuite vind je een elegante luxe badkamer met inloopdouche, dubbele design wasbak, maatwerk spiegels en toilet. De tweede kamer doet nu dienst als bureau, maar heeft aansluitend een bergkamer met voorzieningen voor een extra badkamer.  Zowel voor- als achteraan zijn er ruime terrassen (ca 60 m² & ca 12,5 m²), met uitzicht op de gemeenschappelijke binnentuin en de stad. Dankzij de slimme oriëntatie geniet je hier van licht en privacy, de hele dag door.

Wonen tussen het theaterplein en botanische tuin

Rust, privacy én toch midden in het leven van de stad. In de Henri Van Heurckstraat woon je tussen het Theaterplein, de Meir, het Mechelseplein en het prachtige Botanic Sanctuary. Alle winkels, horeca en cultuur op wandelafstand. Openbaar vervoer (metro Meir, tram op de Leien en Centraal Station) bereik je binnen de 5 minuten te voet.

Wenst u meer informatie of een bezoek?

Stuur ons een bericht en u mag binnen de 24u een reactie van ons verwachten.

Troeven

  • twee grote terrassen (ca 60 m² & ca 12,5 m²)
  • luxueuze afwerking
  • vloerverwarming
  • domotica
  • airco
  • gashaard
  • hoge plafonds (2,87m)
  • kamerhoge deuren
  • veel licht & privacy
  • optioneel: 2 staanplaatsen met laadpaal (€50.000/stuk)
  • ondergrondse berging
  • top ligging
  • Botanische tuin om de hoek
  • ruime kelderberging aanwezig

Gebouw

Staat
Direct bewoonbaar
Aantal verdiepingen
4
Bebouwing
Halfopen
Bouwjaar
2018
Beschikbaarheid
Bij akte

Comfort

Keuken
Hyper-geïnstalleerd
Aansluiting gas
Ja
Lift
Ja

Terrein

Bewoonbare oppervlakte
106 m2
Grondoppervlakte
5769 m2
Living
42 m2
Terras
72,5 m2
Diepte
324 m

* afmetingen bij benadering

Energie

EPC UC
11002-G-2013_56913/EP16983/A0007/D01/SD008
EPC
130 kWh/m2
  • f
  • e
  • d
  • c
  • b
  • a
  • a+
Elektrische keuring
Ja, conform AREI
Verwarming
Individueel - CV op gas
Beglazing
Dubbel
Dak
Plat dak

Stedenbouwkundige informatie

Stedenbouwkundige bestemming
Woongebied met een culturele historische en/of esthetische waarde
Bouwvergunning
Ja
Verkavelingsvergunning
Niet van toepassing
Voorkooprecht
Nee
Dagvaarding en herstelvordering
Geen rechterlijke herstelmaatregel of bestuurlijke maatregel opgelegd
Overstromingsgevoelig gebied
Nee
G-score
Klasse C
P-score
Klasse C

Financieel

Prijs
€ 995.000
Huidige gemeensch. kosten p/m
€ 264

€ 264: syndicus, blokpolis, poetsen gebouw en garages, allerlei onderhoud (pompen, waterputten, leidingen,....) afval, liften, elektriciteit GD, klein onderhoud,... € 62: reservekapitaal

Registratiekosten en kostprijs berekenen voor

  • 12%
  • 2%
Registratierechten*
€ 119.400
Honorarium notaris
€ 2.874
Honorarium notaris (incl. BTW)
€ 3.477
Totale kosten
€ 122.877
Totale kostprijs
€ 1.117.877
Registratierechten*
€ 19.900
Honorarium notaris
€ 2.874
Honorarium notaris (incl. BTW)
€ 3.477
Totale kosten
€ 23.377
Totale kostprijs
€ 1.018.377

Simulatie leningkost

Gemiddelde maandelijkse afbetaling
Projectprijs
995.000
Eigen geld
25.000
Rente
2%
Looptijd
20 jaar

*Uitleg financiële voorstelling:

Dit is een richtinggevende schatting van de bijkomende kosten van je aankoop. Deze is afhankelijk van variabele factoren, waaronder volgende voorbeelden;

  • Zal de aankoop al dan niet jouw hoofdverblijfplaats worden?
  • Koop je aan als een natuurlijk persoon of als vennootschap?

Voor een uitgebreide berekening van de registratie-rechten en erelonen, kijk op berekeningsmodule - notaris.be. Andere kosten bij je notaris staan ook uitgelegd op notaris.be

*Registratierechten; 

  • De standaard registratierechten bij aankoop van een woning bedragen 12% van de aankoopprijs.
  • Registratirechten bij aankoop van de enige eigen woning bedragen 2% van de aankoopprijs. 

Er bestaat een bijkomende vermindering, bij aankoop van een woning onder € 220.000,00 of onder € 240.000,00 als deze in een centrumstad of de Vlaamse Rand gelegen is.

Dit alles onder voorbehoud van de voorwaarden die je kan terugvinden op vlaanderen.be

* Alle afmetingen op onze website zijn indicatief. 

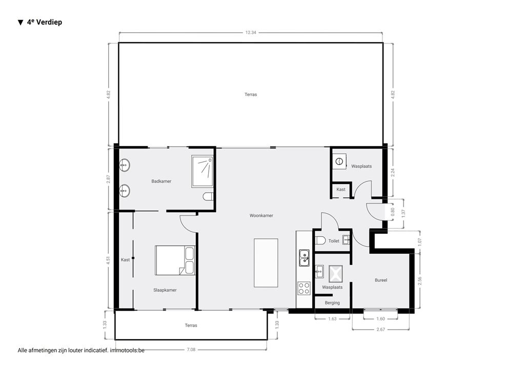
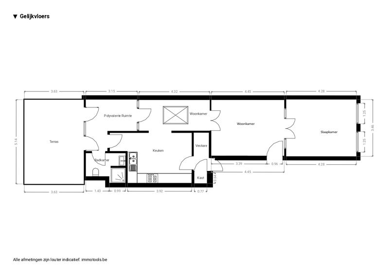
Indeling

Verdieping 4
Inkomhal
4,5 m2
Living
42,0 m2
Keuken
8,0 m2
Bureau
13,0 m2
wasruimte
5,0 m2
Toilet 1
1,5 m2
Slaapkamer 1
16,0 m2
Badkamer 1
12,0 m2
Terras 1
12,5 m2
Terras 2
60,0 m2
Kelder(-1)
Berging 1
6,0 m2

* afmetingen bij benadering

Wenst u meer informatie of een bezoek?

Stuur ons een bericht en u mag binnen de 24u een reactie van ons verwachten.

Vergelijkbare panden

Nieuw
ANTWERPEN
52 m2
1
B
Nieuw
ANTWERPEN
46 m2
1
2 m2
B
Nieuw
ANTWERPEN
77 m2
1
18 m2
D

Uw favorieten

Hou me op de hoogte